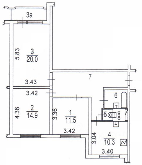
Продается просторная 3х комнатная квартира на 17 эт/22 этажного панельного дома 2012 года. Квартира со светлой отделкой, мала была в эксплуатации за все время, чистая, опрятная. В подьезде работает консьерж. Три лифта. Общий тамбур на 4 квартиры.
Квартира с комфортной планировкой с изолированными комнатами 20-14,9-11,5кв.м , лоджия из большой комнаты 3кв.м., кухня 10,3кв.м., с/у раздельный.
Район с развитой инфраструктурой, в шаговой доступности рядом тц Июнь, 4Dayli, фитнес клубы, бассейны, школа/лицей, дет.сады.
Ост.общ.транспорта до м.Медведково 15мин, до ж/д ст. Мытищи 10мин, до центр.парка города 15мин, до лесопарковой прогулочной зоны 15мин.




























