сдам торговые площади, Астрахова проспект, 7/1270 000 ₽ в месяц
6 мар 2025
Дата публикации объявления
Обн. 27 мая 2025
Дата обновления объявления
4
Количество просмотров (+ просмотры за сегодня)
1000 ₽/м² в месяц
Параметры
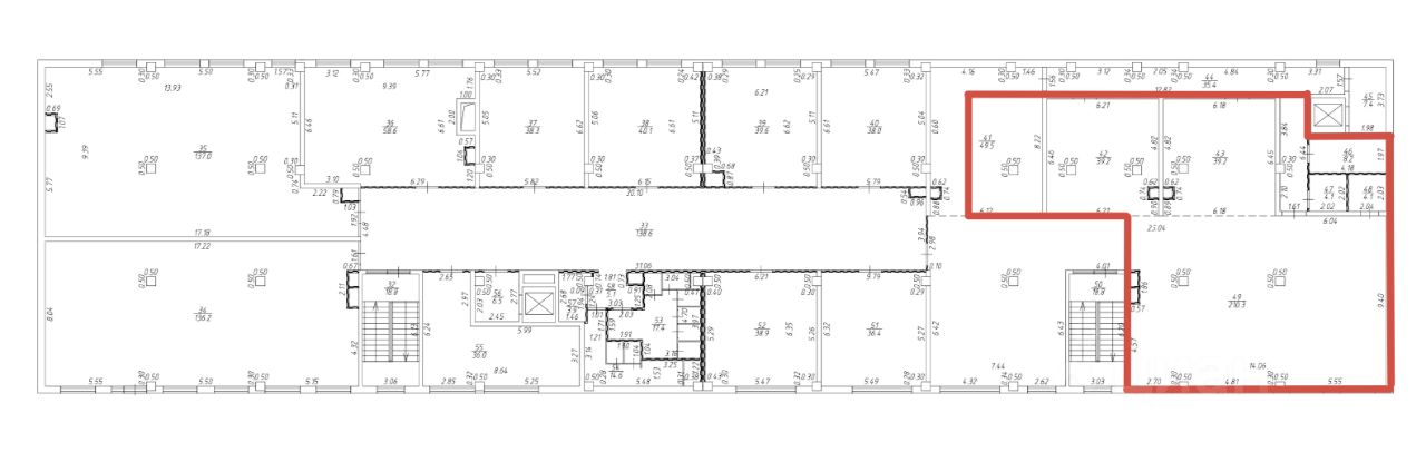
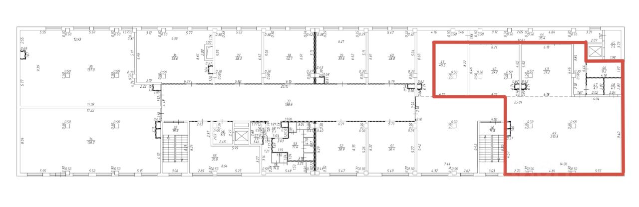
Общая площадь270 м2
Этаж2
Сдаётся торговая площадь на 2-м этаже 270 м2 в новом ТЦ ''Атлант'' (пр-кт Астрахова д.7)
Выполнено: оштукатуривание стен и цементная стяжка пола
Отдельно стоящее здание
Возможно размещение вывески на фасаде здания
Планировка: свободная
Возможно разделение помещений на секции, а так же их объединение
Потолки: 3,6м
Окна: широкие, витринные с выходом на проспект Астрахова
Электричество: от 15кВт, три фазы 380
Отопление: центральное
Общий санузел на этаже.
Сдаётся торговая площадь на 2-м этаже 270 м2 в новом ТЦ ''Атлант'' (пр-кт Астрахова д.7)
Выполнено: оштукатуривание стен и цементная стяжка пола
Отдельно стоящее здание
Возможно размещение вывески на фасаде здания
Планировка: свободная
Возможно разделение помещений на секции, а так же их объединение
Потолки: 3,6м
Окна: широкие, витринные с выходом на проспект Астрахова
Электричество: от 15кВт, три фазы 380
Отопление: центральное
Общий санузел на этаже.
Зона разгрузки: отдельная от входных групп Высокий пешеходный трафик: В шаговой доступности от ТЦ расположились: - ЖК ''Лидер Парк'' - ЖК ''Новое Медведково'' - ЖК ''Орион'' Район густонаселенный и современный, продолжает активно расширяться Высокий транспортный и пешеходный трафик Население соседних ЖК: молодые семьи с детьми. Рядом расположен детский сад. В пяти минутах от здания: Рупасовские пруды. Комфортно добираться и на общественном, и на личном транспорте. Автобусная остановка в 5м от центрального входа
Гибкие условия аренды Без комиссии. Прямой договор с собственником. На длительный срок. Счетчики оплачиваются отдельно (электроэнергия и водоснабжение). Арендные каникулы.
Звоните в любое время или пишите в мессенджеры, расскажу подробности и организую показ. Геннадий.