Если цена в объявлении изменится, мы сразу сообщим вам об этом на электронную почту.
Нажимая «Подписаться», вы соглашаетесь с правилами.
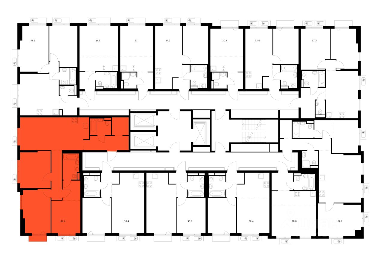
продам 3-к, Ярославский ЖК, 2.217 479 240 ₽
11 апр 2025
Дата публикации объявления
Обн. сегодня
Дата обновления объявления
3
Количество просмотров (+ просмотры за сегодня)
Спецпредложение
Турбо x8
207 100 ₽/м²
Чистая продажа
Термин "Чистая продажа" означает, что в квартире никто не прописан или
есть куда выписаться и вывезти вещи. Это лучший вариант для покупателя.
Вероятность срыва сделки минимальна.
Продаётся 3-комн. квартира площадью 84,4 кв.м на 3 этаже 25 этажного дома (Корпус 2.2, Секция 1) проекта ПИК Ярославский квартал. Светлый просторный подъезд на уровне земли, функциональная планировка, большие окна, c отделкой.
Проект ''Ярославский квартал'' возводится в Мытищах, в 6 км от МКАД. Жилой квартал, состоящий из 8 корпусов, строится рядом с Ярославским шоссе и имеет удобный заезд с крупной автомагистрали.
На территории проекта появится школа, детский сад и пешеходный бульвар. Индивидуальные дизайны фасадов для ''Ярославского квартала'' разработало петербургское архитектурное бюро. В их портфолио вошли работы для Московского музея современного искусства, ГЦСИ, Манифеста 10 и ЦВЗ Манеж.
Продаётся 3-комн. квартира площадью 84,4 кв.м на 3 этаже 25 этажного дома (Корпус 2.2, Секция 1) проекта ПИК Ярославский квартал. Светлый просторный подъезд на уровне земли, функциональная планировка, большие окна, c отделкой.
Проект ''Ярославский квартал'' возводится в Мытищах, в 6 км от МКАД. Жилой квартал, состоящий из 8 корпусов, строится рядом с Ярославским шоссе и имеет удобный заезд с крупной автомагистрали.
На территории проекта появится школа, детский сад и пешеходный бульвар. Индивидуальные дизайны фасадов для ''Ярославского квартала'' разработало петербургское архитектурное бюро. В их портфолио вошли работы для Московского музея современного искусства, ГЦСИ, Манифеста 10 и ЦВЗ Манеж.
За 7 минут можно дойти пешком до ближайшей автобусной остановки. Столько же займёт дорога до ''Лосиного острова'' - облагороженного парка с разными активностями для всей семьи, благоустроенными зонами для отдыха, местами для прогулок и пробежек на свежем воздухе.
Доехать на автомобиле до Ярославского шоссе получится за 3 минуты, до станции ''Мытищи'' - за 9 минут, до МКАД - за 15 минут. Артикул 1013041 (Застройщик ООО ''Специализированный ''ГЕОПАРК'')