Если цена в объявлении изменится, мы сразу сообщим вам об этом на электронную почту.
Нажимая «Подписаться», вы соглашаетесь с правилами.
продам 3-к, Октябрьский проспект, 10а15 900 000 ₽
6 июня 2025
Дата публикации объявления
Обн. 5 авг
Дата обновления объявления
3
Количество просмотров (+ просмотры за сегодня)
167 368 ₽/м²
Чистая продажа
Термин "Чистая продажа" означает, что в квартире никто не прописан или
есть куда выписаться и вывезти вещи. Это лучший вариант для покупателя.
Вероятность срыва сделки минимальна.
Код объекта: 1628825. Трехкомнатная квартира в кирпично-монолитном доме 2013 года. Свободная продажа, никто не прописан, ипотека возможна.
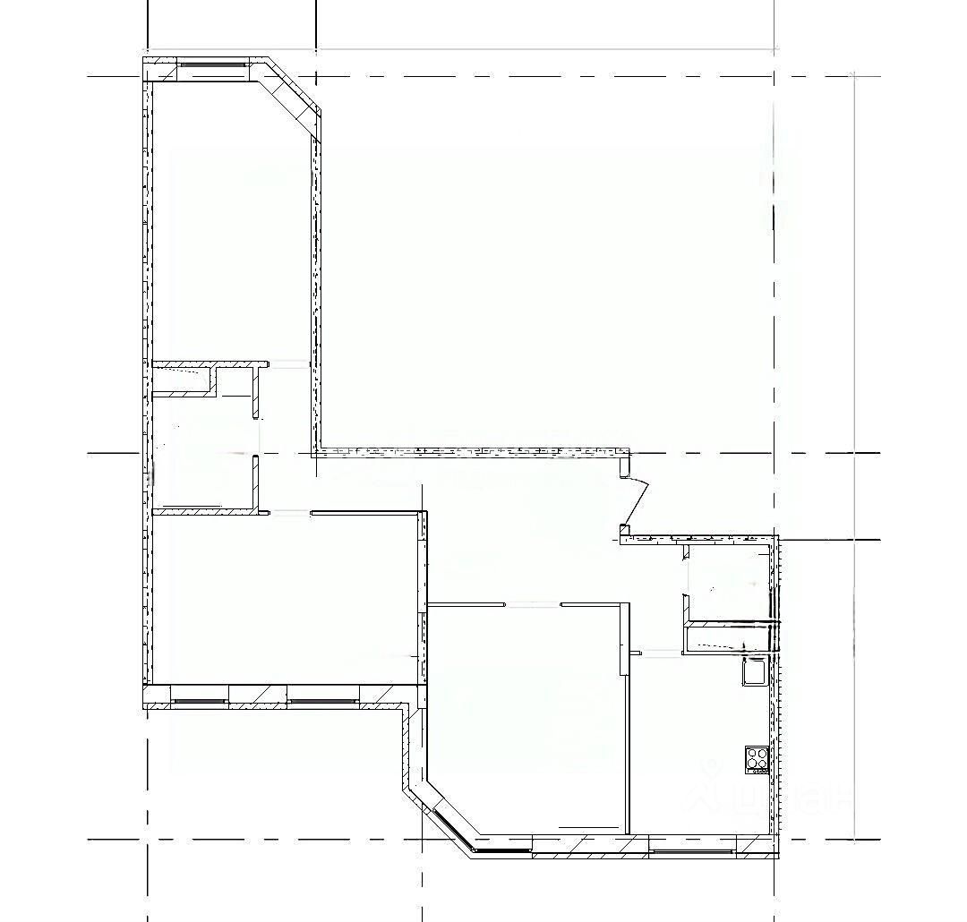
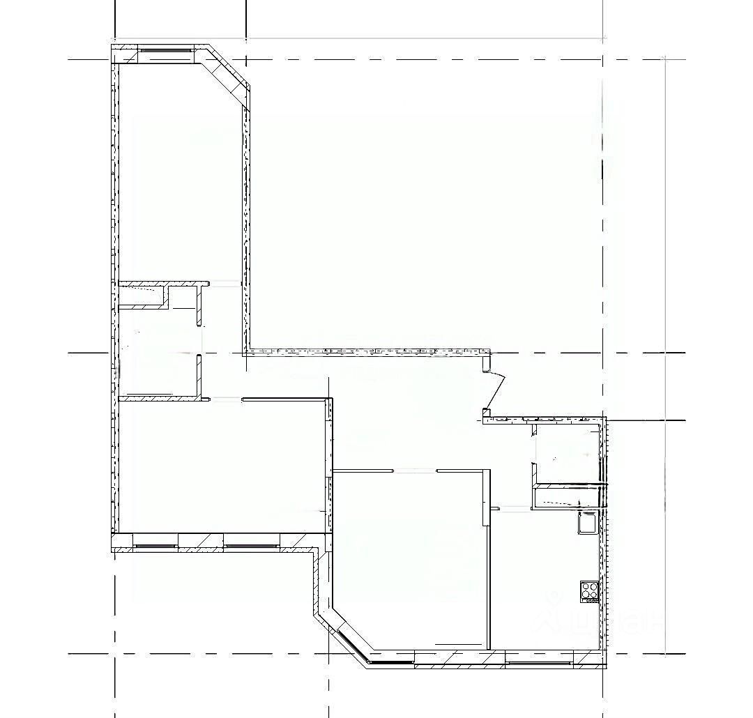
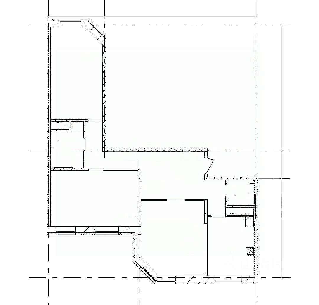
Высокий первый этаж Планировка изолированная, окна на две стороны : широкая прихожая без транзитных путей с возможностью установки шкафов-купе, налево от входа раздельный санузел, кухня, первая комната, прямо коридору еще 2 спальни.
Высота потолков 2,8 метра
В кухне: электрическая плита, гарнитур, холодильник, стол с уголком, стены - обои, пол линолеум, окно- пластиковое. В комнатах: пол линолеум/ ламинат, на стенах обои. Два больших совмещенных санузел, стиральная машина в ванной.
В подъезд чистый, оборудован пандусом . Наземная парковка обеспечит удобство при размещении автомобиля.
Код объекта: 1628825. Трехкомнатная квартира в кирпично-монолитном доме 2013 года. Свободная продажа, никто не прописан, ипотека возможна.
Высокий первый этаж Планировка изолированная, окна на две стороны : широкая прихожая без транзитных путей с возможностью установки шкафов-купе, налево от входа раздельный санузел, кухня, первая комната, прямо коридору еще 2 спальни.
Высота потолков 2,8 метра
В кухне: электрическая плита, гарнитур, холодильник, стол с уголком, стены - обои, пол линолеум, окно- пластиковое. В комнатах: пол линолеум/ ламинат, на стенах обои. Два больших совмещенных санузел, стиральная машина в ванной.
В подъезд чистый, оборудован пандусом . Наземная парковка обеспечит удобство при размещении автомобиля.
Мы сняли для вас подробное видео, предоставим по требованию.
Вид из окон в тихий зеленый двор, на детскую площадку и детский сад. Экологически-благополучный, зеленый район, с развитой инфраструктурой. В пешей доступности детские площадки, магазины, школы, детские сады, поликлиники, пункты выдачи товаров.
До благоустроенной набережной р. Яузы - 3 минуты пешком. Рядом с домом березовая роща. Во дворе детский сад, в пешей доступности языковая гимназия, музыкальная школа. До центра города и центрального городского парка - 15 минут пешком. Жилой квартал ''Цветочный город'' - это новые монолитные дома, уже сейчас хорошая транспортная доступность.
До ж/д ст. Тайнинская 5 минут пешком. Удобный выезд на Ярославское шоссе по новой развязке. 15 минут до МЦК ''Ростокино''. За 30 минут на электропоезде до центра Москвы и площади трех вокзалов! В недалеком будущем - МЦД - 5 ''Пушкино-Домодедово''.
Квартира юридически проверена. Нашим покупателям помощь в одобрении ипотеки, преференции от банков-партнеров.
Приглашаем на просмотр!
Работать с нами выгодно и надёжно:
в МИЭЛЬ самый высокий уровень проверки объектов финансовая гарантия до 25 млн. руб. индивидуальное сопровождение по ипотеке во всех банках Подробная информация у агента МИЭЛЬ.