Если цена в объявлении изменится, мы сразу сообщим вам об этом на электронную почту.
Нажимая «Подписаться», вы соглашаетесь с правилами.
продам 5-к, Октябрьский проспект, 10а23 400 000 ₽
14 июля 2025
Дата публикации объявления
Обн. 21 июля 2025
Дата обновления объявления
10
Количество просмотров (+ просмотры за сегодня)
130 508 ₽/м²
Чистая продажа
Термин "Чистая продажа" означает, что в квартире никто не прописан или
есть куда выписаться и вывезти вещи. Это лучший вариант для покупателя.
Вероятность срыва сделки минимальна.
Продается двухуровневая квартира (пентхаус) в ЖК Цветочный город. Ремонт от застройщика, свободная планировка, высокие потолки, небольшое количество несущих стен дает возможность сделать планировку по своему вкусу.
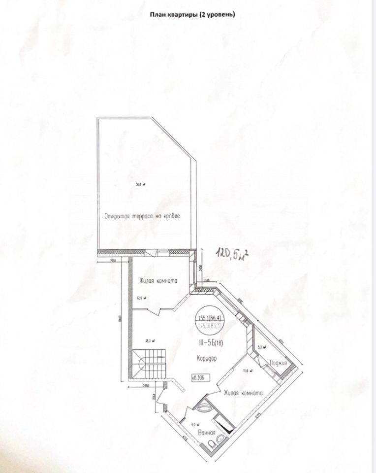
Планировка пентхауса: - 1 уровень: 2 жилые комнаты 17,8 и 18,3 м2 с французскими балконами, жилая комната 15,5 м2 с лоджией 3,2 м2, кухня 12,5 м2 с лоджией 3,3 м2, ванная комната 5,8 м2, прихожая 11,5 м2 и коридор 7,3 м2. - 2 уровень: просторный холл 38,3 м2, жилая комната 11,6 м2 с лоджией 3,3 м2, ванная комната 4 м2, жилая комната 12,5 м2 с выходом на личную террасу 50,8 м2. Жилая площадь квартиры 158,9 м2, общая площадь 179,3 м2.
Продается двухуровневая квартира (пентхаус) в ЖК Цветочный город. Ремонт от застройщика, свободная планировка, высокие потолки, небольшое количество несущих стен дает возможность сделать планировку по своему вкусу.
Планировка пентхауса: - 1 уровень: 2 жилые комнаты 17,8 и 18,3 м2 с французскими балконами, жилая комната 15,5 м2 с лоджией 3,2 м2, кухня 12,5 м2 с лоджией 3,3 м2, ванная комната 5,8 м2, прихожая 11,5 м2 и коридор 7,3 м2. - 2 уровень: просторный холл 38,3 м2, жилая комната 11,6 м2 с лоджией 3,3 м2, ванная комната 4 м2, жилая комната 12,5 м2 с выходом на личную террасу 50,8 м2. Жилая площадь квартиры 158,9 м2, общая площадь 179,3 м2. Холодные помещения (3 лоджии и 1 терраса) рассчитываются иными коэффициентами, поэтому фактически общая площадь 215,7 м2. Дом 2013 года постройки, в подъезде 1 пассажирский и 1 грузовой лифт, консьерж, видеонаблюдение. Предусмотрены подземный и открытый паркинг.
Комплекс обладает благоустроенной территорией и собственной инфраструктурой. В микрорайоне есть детский сад, школа, аптеки, магазины различной направленности, салоны красоты, пункты социально-бытового обслуживания. Жилые дома спроектированы на берегу реки и граничат с обширной парковой зоной, оборудованной велодорожками, спортивными и детскими площадками. Неподалёку находится национальный парк Лосиный остров, а так же Перловский парк, Центральный парк культуры и отдыха и парк аттракционов Чайлэнд. Рядом расположена железнодорожная станция Тайнинская Ярославского направления в 7 минутах ходьбы. До станции метро Ростокино 10 минут на электричке. Удобный выезд на Ярославское и Осташковское шоссе, а так же на МКАД. В перспективе строительство линии D5 московских центральных диаметров (МЦД) до аэропорта Домодедово, а также станция метро Челобитьево Калужско-Рижской линии Московского метрополитена.
Свободная продажа. Решение о продаже принято солидарно 4 взрослыми собственниками в семье. Снятие с регистрационного учета до сделки. Полная стоимость в договоре. Возможно приобретение в ипотеку. Квартира получена от застройщика, первые собственники, юридически чистая, без истории. Свернуть