Арт. 71279422.
Сдается помещение свободного назначения в центре г. Мытищи
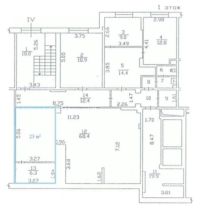
Общая площадь помещения 23 м2
Помещение состоит из двух смежных комнат
Есть мокрая точка
Стоимость аренды 1 квадратного метра 1 800 рублей в месяц
Коммунальные услуги не входят в стоимость аренды и оплачиваются отдельно
Собственник предоставит помещения по договору аренды
Помещение находится в жилом многоквартирном доме ЖК ''Гулливер'', что обеспечит повышенное внимание к вашему бизнесу
Отличная транспортная доступность, до ж/д Мытищи 5 минут на автомобиле, до Ярославского шоссе 15 минут, до метро Медведково 40 минут
Уважаемые арендаторы это отличное решение для вашего ПРОЦВЕТАЮЩЕГО БИЗНЕСА!
Арт. 71279422.
Сдается помещение свободного назначения в центре г. Мытищи
Общая площадь помещения 23 м2
Помещение состоит из двух смежных комнат
Есть мокрая точка
Стоимость аренды 1 квадратного метра 1 800 рублей в месяц
Коммунальные услуги не входят в стоимость аренды и оплачиваются отдельно
Собственник предоставит помещения по договору аренды
Помещение находится в жилом многоквартирном доме ЖК ''Гулливер'', что обеспечит повышенное внимание к вашему бизнесу
Отличная транспортная доступность, до ж/д Мытищи 5 минут на автомобиле, до Ярославского шоссе 15 минут, до метро Медведково 40 минут
Уважаемые арендаторы это отличное решение для вашего ПРОЦВЕТАЮЩЕГО БИЗНЕСА! ЗВОНИТЕ и убедитесь сами!