Термин "Чистая продажа" означает, что в квартире никто не прописан или
есть куда выписаться и вывезти вещи. Это лучший вариант для покупателя.
Вероятность срыва сделки минимальна.
Арт. 112481568 Срочно продается просторная 3-комнатная квартира с ремонтом в ЖК бизнес-класса ''КИТ''. Проект предусматривает подземный паркинг и внеквартирные кладовые. Прямо из закрытого двора по надземному переходу вы попадаете на территорию многофункционального ''ТРЦ Красный Кит''. В шаговой доступности находятся лучшие образовательные учреждения, парки и прогулочные зоны, ж/д и автовокзалы.
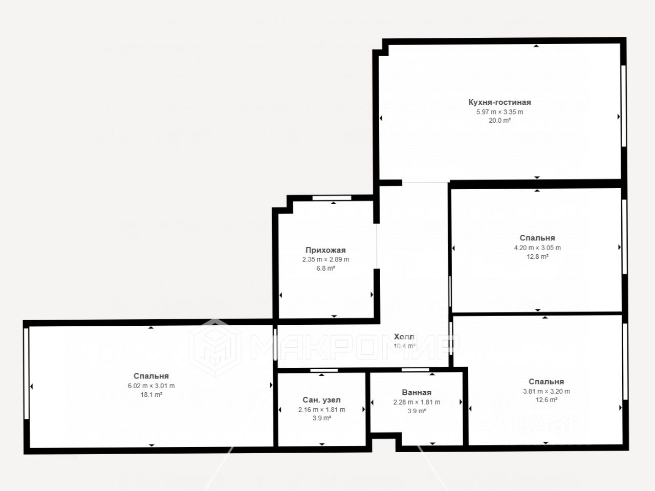
ПАРАМЕТРЫ КВАРТИРЫ: Общая площадь: 91,5 кв. м. Кухня-столовая: 20,6 кв.м. Жилые комнаты: 13 / 13.7 / 18,9 кв.м. Прихожая: 6,4 кв.м. Холл: 11,2 кв.м. Сан. узлы: 4,1 / 4,1 кв.м. Высота потолков: 2,7 м
ХАРАКТЕРИСТИКИ ДОМА: 1. Район: г. Мытищи, 25 мкр. 2. Тип дома: монолитный 3. Класс дома: бизнес 4.
Арт. 112481568 Срочно продается просторная 3-комнатная квартира с ремонтом в ЖК бизнес-класса ''КИТ''. Проект предусматривает подземный паркинг и внеквартирные кладовые. Прямо из закрытого двора по надземному переходу вы попадаете на территорию многофункционального ''ТРЦ Красный Кит''. В шаговой доступности находятся лучшие образовательные учреждения, парки и прогулочные зоны, ж/д и автовокзалы.
ПАРАМЕТРЫ КВАРТИРЫ: Общая площадь: 91,5 кв. м. Кухня-столовая: 20,6 кв.м. Жилые комнаты: 13 / 13.7 / 18,9 кв.м. Прихожая: 6,4 кв.м. Холл: 11,2 кв.м. Сан. узлы: 4,1 / 4,1 кв.м. Высота потолков: 2,7 м
ХАРАКТЕРИСТИКИ ДОМА: 1. Район: г. Мытищи, 25 мкр. 2. Тип дома: монолитный 3. Класс дома: бизнес 4. В наличии: Комфортабельные лобби и консьерж сервис 5. Год постройки: 2023 6. Перекрытия: Железобетонные 7. Этажность: 25 8. Квартира расположена на: 4 этаже 9. Квартир на этаже: 5 10. Лифты: пассажирский - 1, грузовой - 2 11. Количество корпусов: 2 12. Количество секций: 7 13. Общее кол-во квартир: 1344 14. Паркинг: подземный, двухуровневый, кол-во м/м 394 15. Хозяйственные кладовые: 634 16. Застройщик: ООО ''СЗ ИНВЕСТ ГРУП''
Внутренняя ИНФРАСТРУКТУРА ЖК ''КИТ'' - Кафе-пекарня - Ресторан - Частный детский сад - Продуктовый магазин ''Магнит'' - Салон красоты - Массажный салон - Школа йоги и фитнес зал - Стоматология - Пункт самовывоза WB
Внешняя ИНФРАСТРУКТУРА ЖК ''КИТ'' в 5 минутах пешком: - Многофункциональный ТРЦ ''Красный Кит'' - Гимназия 16 ''Алые Паруса'' - Школа и детский сад 14 - Школа искусств Архимед - Многопрофильный медицинский центр в г. Мытищи - Стадион им. Оленичева - Храм Рождества Христова - Парк Мира центральный парк г. Мытищи - Благоустроенная набережная реки Яуза - Бары, Кафе и Рестораны на любой вкус
ТРАНСПОРТНАЯ ДОСТУПНОСТЬ (слева текст, справа Яндекс карта с точкой расположения ЖК КИТ): 2,2 км - до Волковского шоссе 2,8 км - до Ярославского шоссе 5,7 км - до МКАД 5 минут пешком - до ж/д станции ''Мытищи'' и Автовокзала 18 минут - до станции метро ''Комсомольская'' 20 минут - до станции метро ''Медведково''
Прямая продажа. Один собственник. Полный пакет документов готов к любому виду сделки, включая ипотеку. Записывайтесь на просмотр квартиры заранее, пожалуйста.