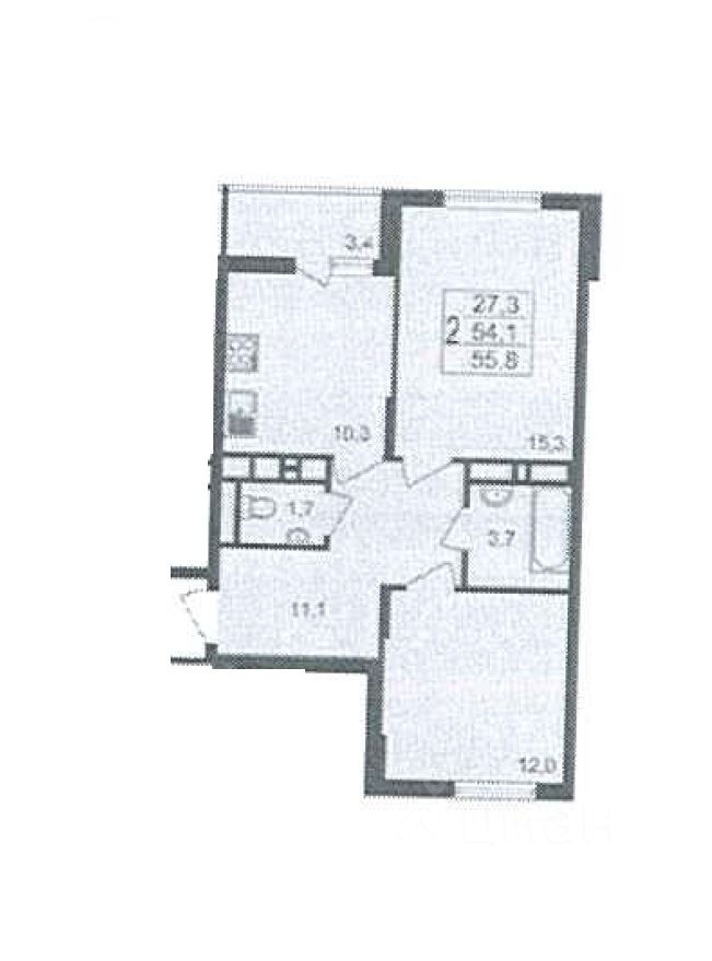
О КВАРТИРЕ:
- Общая площадь 55,8 м² (53,6 без учета лоджии).
- Жилая площадь 27,3 м² (15,3 и 12)
- Кухня 10,3 м²
- С\У раздельный
- Лоджия застеклена.
- Этаж - 4 из 18
+ Колясочная
+ Кладовка
ЛЕГКО КУПИТЬ:
- один собственник на основании ДДУ
- полная цена в договоре,
- без долгов и обременений,
- подходит под ипотеку,
- свободная продажа
- Всем удачного выбора и скорейшего новоселья!

















