Термин "Чистая продажа" означает, что в квартире никто не прописан или
есть куда выписаться и вывезти вещи. Это лучший вариант для покупателя.
Вероятность срыва сделки минимальна.
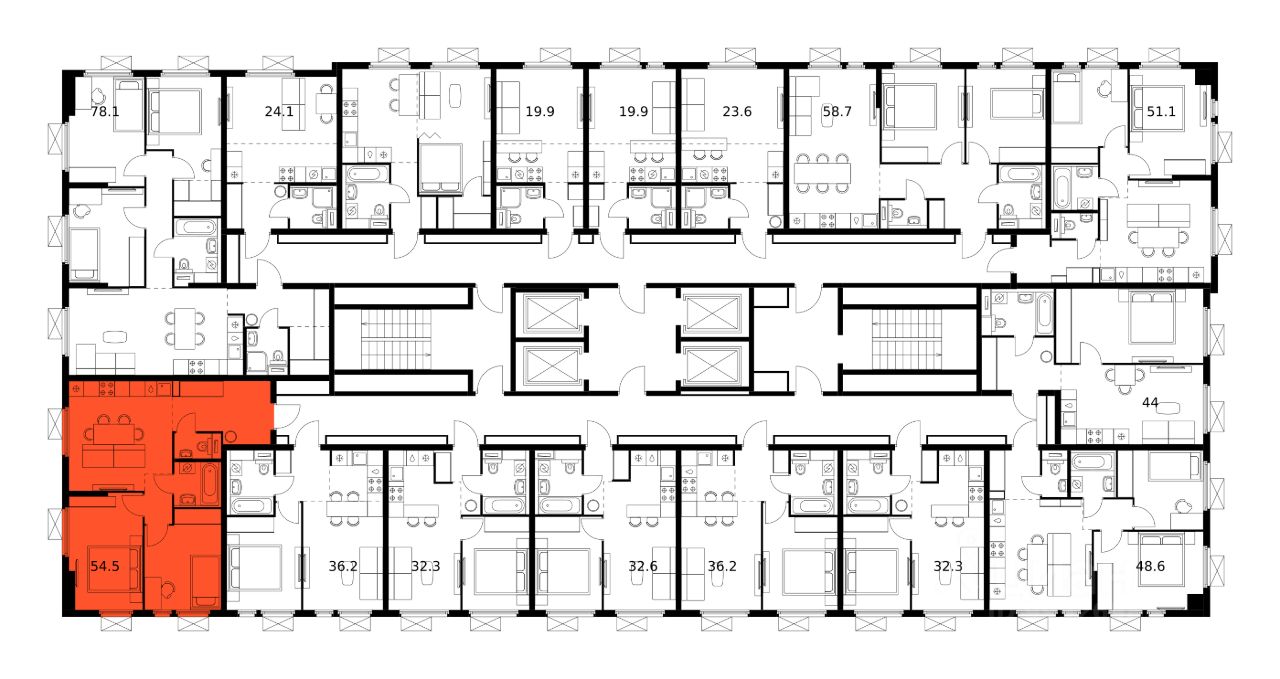
Продаётся 2-комн. квартира площадью 53,8 кв.м на 14 этаже 25 этажного дома (Корпус 1.4, Секция 1) проекта ПИК Ярославский квартал. Светлый просторный подъезд на уровне земли, функциональная планировка, большие окна, c отделкой.
Проект ''Ярославский квартал'' возводится в Мытищах, в 6 км от МКАД. Жилой квартал, состоящий из 8 корпусов, строится рядом с Ярославским шоссе и имеет удобный заезд с крупной автомагистрали.
На территории проекта появится школа, детский сад и пешеходный бульвар. Индивидуальные дизайны фасадов для ''Ярославского квартала'' разработало петербургское архитектурное бюро. В их портфолио вошли работы для Московского музея современного искусства, ГЦСИ, Манифеста 10 и ЦВЗ Манеж.
Объект забронирован клиентом!
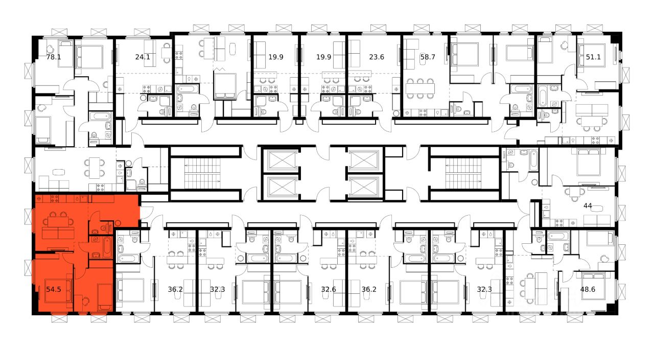
Продаётся 2-комн. квартира площадью 53,8 кв.м на 14 этаже 25 этажного дома (Корпус 1.4, Секция 1) проекта ПИК Ярославский квартал. Светлый просторный подъезд на уровне земли, функциональная планировка, большие окна, c отделкой.
Проект ''Ярославский квартал'' возводится в Мытищах, в 6 км от МКАД. Жилой квартал, состоящий из 8 корпусов, строится рядом с Ярославским шоссе и имеет удобный заезд с крупной автомагистрали.
На территории проекта появится школа, детский сад и пешеходный бульвар. Индивидуальные дизайны фасадов для ''Ярославского квартала'' разработало петербургское архитектурное бюро. В их портфолио вошли работы для Московского музея современного искусства, ГЦСИ, Манифеста 10 и ЦВЗ Манеж.
За 7 минут можно дойти пешком до ближайшей автобусной остановки. Столько же займёт дорога до ''Лосиного острова'' - облагороженного парка с разными активностями для всей семьи, благоустроенными зонами для отдыха, местами для прогулок и пробежек на свежем воздухе.
Доехать на автомобиле до Ярославского шоссе получится за 3 минуты, до станции ''Мытищи'' - за 9 минут, до МКАД - за 15 минут. Артикул 911520 (Застройщик ООО ''Специализированный ''ГЕОПАРК'')