Если цена в объявлении изменится, мы сразу сообщим вам об этом на электронную почту.
Нажимая «Подписаться», вы соглашаетесь с правилами.
продам 2-к, Колпакова, 2612 000 000 ₽
29 ноя
Дата публикации объявления
Обн. 24 дек
Дата обновления объявления
184 615 ₽/м²
Чистая продажа
Термин "Чистая продажа" означает, что в квартире никто не прописан или
есть куда выписаться и вывезти вещи. Это лучший вариант для покупателя.
Вероятность срыва сделки минимальна.
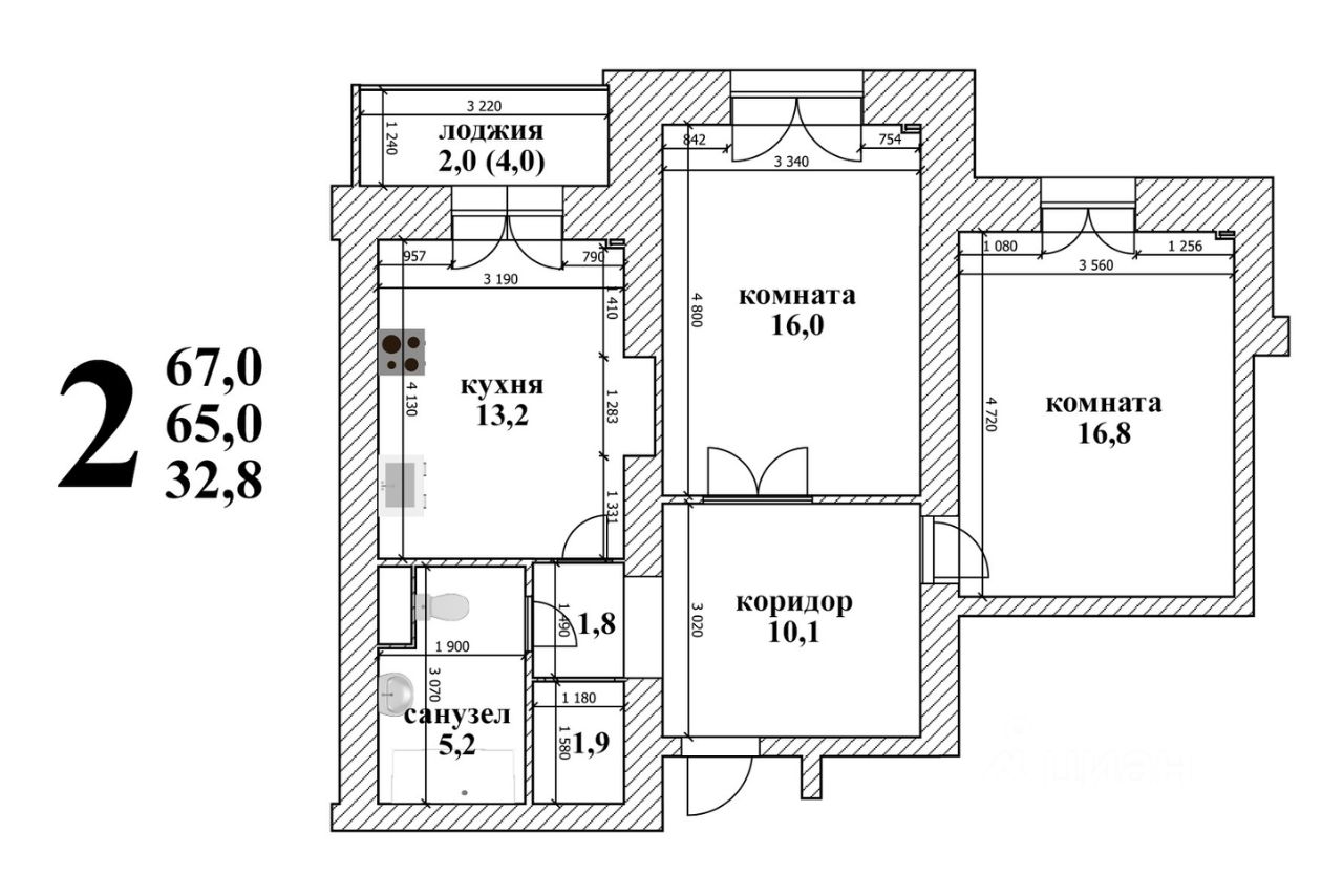
Продаётся двухкомнатная квартира на третьем этаже двенадцатиэтажного кирпичного дома, построенного в 2004 году.
О квартире: Толстые внешние стены около 78 см. Толстые межкомнатные несущие стены 51 см. Общая площадь 65,0 кв.м. Жилая площадь 32,8 кв.м. (комнаты 16,8 и 16,0 кв.м). Кухня 13,2 кв.м. Совмещённый санузел 5,2 кв.м. Большой широкий коридор 10,1 кв.м. Гардеробная/ кладовка 1,9 кв.м. Перекрытая, но не утеплённая лоджия 2,0 (по факту 4,0) кв.м. Высота потолков 2,75 метра. Окна квартиры выходят на улицу. Присутствуют узаконенные незначительные перепланировки. К 01 декабря, квартира будет освобождена от мебели (кроме кухни).
Юридическая ситуация: Обременения отсутствуют.
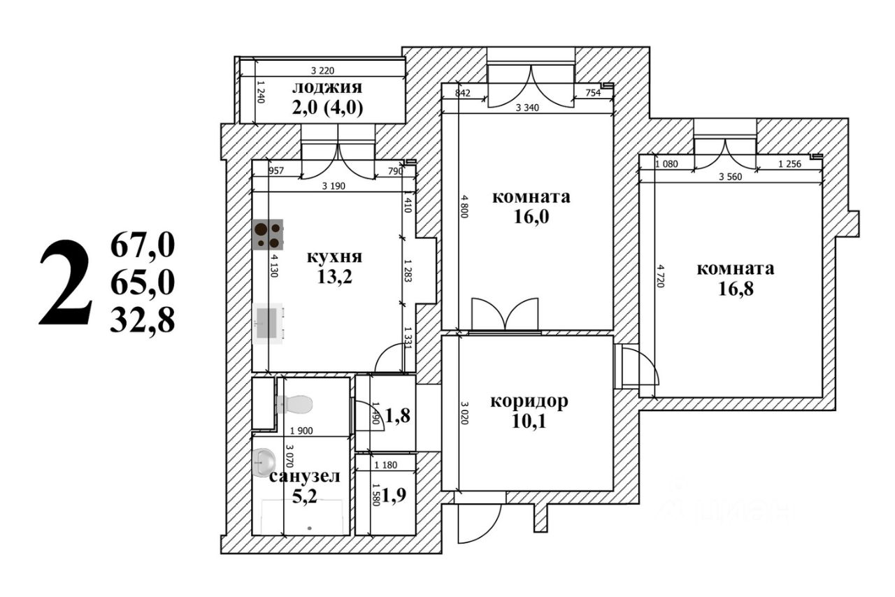
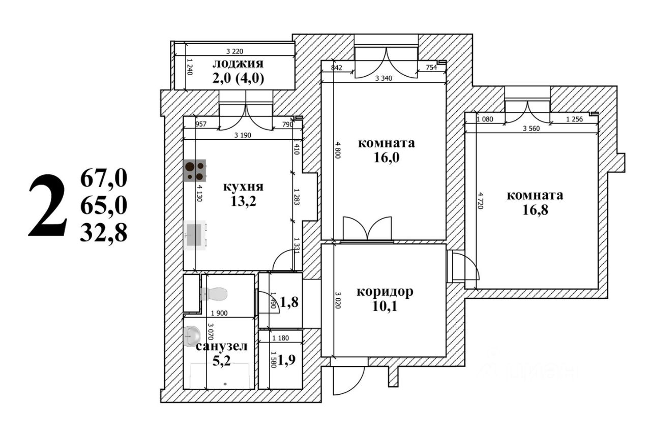
Продаётся двухкомнатная квартира на третьем этаже двенадцатиэтажного кирпичного дома, построенного в 2004 году.
О квартире: Толстые внешние стены около 78 см. Толстые межкомнатные несущие стены 51 см. Общая площадь 65,0 кв.м. Жилая площадь 32,8 кв.м. (комнаты 16,8 и 16,0 кв.м). Кухня 13,2 кв.м. Совмещённый санузел 5,2 кв.м. Большой широкий коридор 10,1 кв.м. Гардеробная/ кладовка 1,9 кв.м. Перекрытая, но не утеплённая лоджия 2,0 (по факту 4,0) кв.м. Высота потолков 2,75 метра. Окна квартиры выходят на улицу. Присутствуют узаконенные незначительные перепланировки. К 01 декабря, квартира будет освобождена от мебели (кроме кухни).
Юридическая ситуация: Обременения отсутствуют. Один взрослый собственник (наследство по закону). Прозрачная история - с момента постройки дома (2004), квартира находится во владении одной семьи. Никто не прописан, никто не проживает. Все документы в порядке, полная цена в договоре.
Инфраструктура: В пешей доступности (около 10 минут пешком), магазины ''Дикси'', ''ВкусВилл'', ''Перекрёсток'', ''Пятёрочка'', ''Ярче'', ''Магнит'', ''Красное и Белое''. Множество аптек и кафе, пункты выдачи онлайн-магазинов. Чуть дальше пешком ТЦ ''4Daily'' и ТЦ ''Июнь. Относительно недалеко (транспортом) - магазины ''Ашан'' и ''Leroy Merlin'' на Осташковском шоссе.
Транспорт: Под домом остановка общественного транспорта (''УВД''). Автобус 419, маршрутные такси 169, 177 до станции метро ''Медведково'', маршрутное такси 167 до станции метро ''Бабушкинская''. Остановка на противоположной стороне улицы (''Школа 28''): автобусы 419, 15, 15к, маршрутные такси 8к, 18к, 177 до ж/д станции ''Мытищи''. От ж/д станции от 20 до 30 минут электричкой до Ярославского вокзала (метро ''Комсомольская'', МЦД-2 и МЦД-4 ''Площадь трёх вокзалов''), с пересадкой на станции ''Ростокино'' на МЦК. Выезд автомобилем на Волковское и Осташковское шоссе.