Если цена в объявлении изменится, мы сразу сообщим вам об этом на электронную почту.
Нажимая «Подписаться», вы соглашаетесь с правилами.
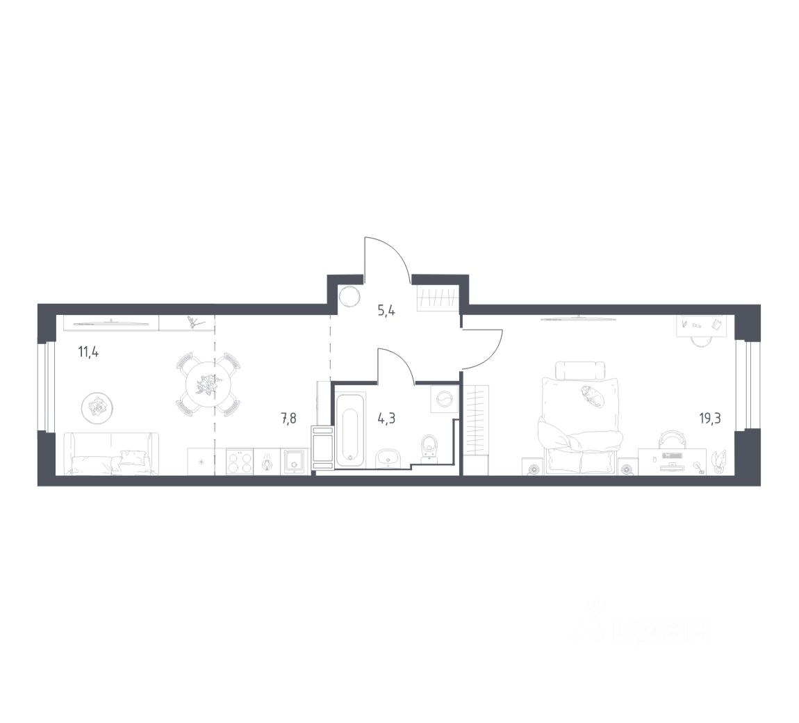
продам 1-к, Стрелковый 1-й переулок, 511 820 996 ₽
16 янв
Дата публикации объявления
Обн. 16 апр
Дата обновления объявления
Спецпредложение
Турбо x8
250 977 ₽/м²
Чистая продажа
Термин "Чистая продажа" означает, что в квартире никто не прописан или
есть куда выписаться и вывезти вещи. Это лучший вариант для покупателя.
Вероятность срыва сделки минимальна.
Строим кварталы для жизни с заботой о будущем. Предлагается 1-комнатная квартира комфорт-класса площадью 47,1 кв.м в корпусе 4.1 на 14-м этаже, в жилом комплексе ''Мытищи Парк''.
Квартиры комплекса — на выбор: могут быть как с отделкой, так и без. В случае с готовой отделкой уложат напольное покрытие, выровняют стены и поклеят обои в нейтральных тонах, установят потолки, выполнят разводку коммуникаций и подключат сантехнику. Вам также не придётся после заселения менять окна, межкомнатные и входные двери — их качество будет на высоте. Помимо базовой отделки, вы можете дополнительно выбрать улучшенную версию. В ней используются износостойкие материалы, ударопрочные плинтуса, ламинат с фаской — все для долговечного использования.
Строим кварталы для жизни с заботой о будущем. Предлагается 1-комнатная квартира комфорт-класса площадью 47,1 кв.м в корпусе 4.1 на 14-м этаже, в жилом комплексе ''Мытищи Парк''.
Квартиры комплекса — на выбор: могут быть как с отделкой, так и без. В случае с готовой отделкой уложат напольное покрытие, выровняют стены и поклеят обои в нейтральных тонах, установят потолки, выполнят разводку коммуникаций и подключат сантехнику. Вам также не придётся после заселения менять окна, межкомнатные и входные двери — их качество будет на высоте. Помимо базовой отделки, вы можете дополнительно выбрать улучшенную версию. В ней используются износостойкие материалы, ударопрочные плинтуса, ламинат с фаской — все для долговечного использования.
Приобрести квартиру возможно по специальным акциям от застройщика, с текущими условиями акций можно ознакомиться в блоке ''Акций''.
Цена динамическая и может отличаться, уточняйте актуальность у застройщика.
ЖК ''Мытищи Парк'' — это надежные и долговечные монолитные корпуса. При проектировании домов и территории застройщик учел потребности жильцов всех возрастов — молодых пар, семей с детьми и пожилых людей. ЖК ''Мытищи Парк'' расположен в Московской области и с двух сторон окружен Пироговским лесопарком.