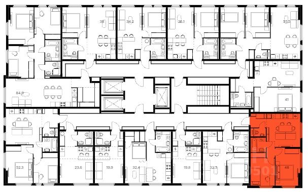
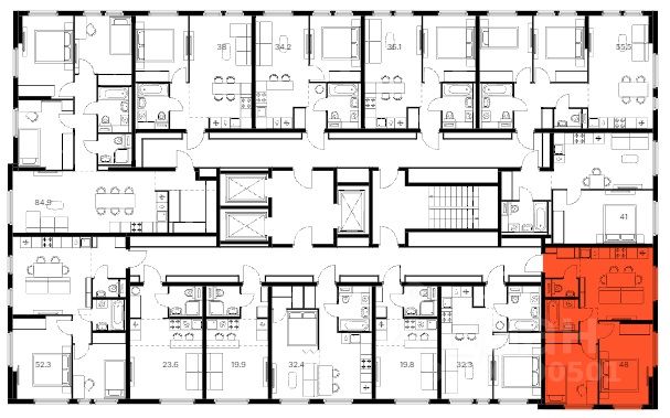
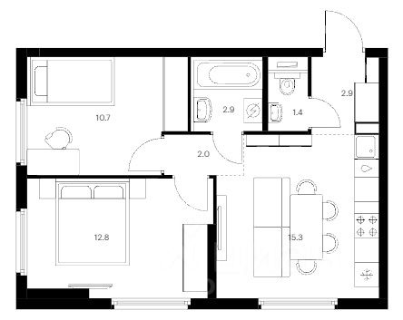
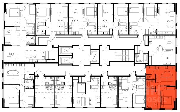
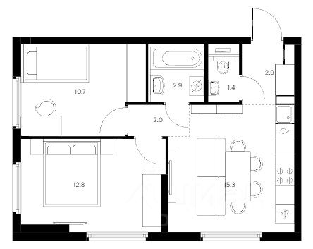
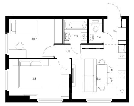
2к-квартира(Евро-3) с ОТДЕЛКОЙ в новом монолитном доме от ПИК.
Две отдельные комгаты и кухня-гостинная. Этаж 25. Вид на Москву, Сити, Останкино. Теплая просторная видовая квартира.
Один собственник. Объект получен, ключи на руках, собственность оформляется в Росреестре. Продажа по ДКП.
15 минут ПЕШКОМ от станции Мытищи. До Мкад 5 минут на машине или автобусе, остановка недалеко. Рядом школа, лес, вся инфраструктура, около дома построен садик.
Возможно в ипотеку.
В помощи при продаже не нуждаюсь!






























