2-к, Мытищи Парк ЖК, 3 Показать на карте
Мытищи
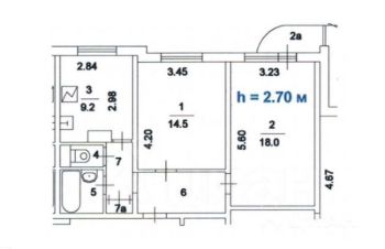
Арт. 53895161 Отличное предложение!Продается 2-комн. квартира, 36 м² с ОТДЕЛКОЙ, КУХНЕЙ и КОНДИЦИОНЕРОМ в ЖК ''Мытищи парк'', 3 корпус - срок сдачи 2 кв 2024 года. Окна смотрят на лес.Дом уже построен идет внешняя и внутренняя отделка корпуса и благоустройство придомовой территории. Зона кухни и гостиной 16,3 м², изолированная комната 10,8 м². Квартира будет сдана с чистовой отделкой, кухонным гарнитуром и техникой.Развитая инфраструктура :ЖК ''Мытищи Парк'' с двух сторон окружает Пироговский лесопарк площадью 1800 га. До национального парка ''Лосиный остров'' и Пироговского водохранилища 15 минут на автомобиле. Проект включает 3 детских сада, 2 школы и физкультурно-оздоровительный комплекс.Транспортная доступность :В 5 минутах езды железнодорожная станция ''Строитель'', в 2024 году она станет частью МЦД-5.30 мнут на транспорте до станции ''Мытищи''. 7 км до МКАД, по Ярославскому шоссе.Плюсы Сотрудничества с нашим агентством:Для покупателя бесплатное страхование сделки и юридическое сопровождение. Помощь в получении ипотеки.Можно приобрести по семейной ипотеки!По всем вопросом, звоните, договоримся
36 м2
7 / 17 этаж
Монолит
- Показать контакты
- Добавить в избранное
36 м2
7 / 17 этаж
Монолит
7 500 000
208 333 /м2
Новостройка,
дом сдан
дом сдан
