Мы объединились! Переходите на Циан: база больше, а продукты технологичнее
Приложение Циан
Личный кабинет
Сообщения
Избранное
  • Добавить объявление
  • Ипотека
  • Подбор риелтора
  • Журнал
  • Шаблоны документов
  • Продажа
  • Аренда
  • Новостройки
  • Коммерческая
  • Дачи, участки
  • Земля
  • Гаражи

Продажа квартир в Мытищах

40 917 объяв.
1/14
10 929 360 ₽
1-к, Яуза Парк ЖК, 6
24 м² · Этаж 12 из 24
Новостройка, 2 кв. 2026
Продаётся квартира-студия площадью 24,8 кв.м на 12 этаже 24 этажного дома (Корпус 6, Секция 1) проекта ПИК Яуза парк. Светлый просторный подъезд на уровне земли, функциональная планировка, большие окна, c отделкой. Жилой квартал ''Яуза парк'' возводится в Мытищах, в 5 минутах ходьбы от одноимённой ж/д станции. Проект включает 20 домов разной этажности с благоустроенными дворами-парками. Сейчас в квартале началось строительство новых корпусов 7-12. Это отличная возможность купить квартиру по стартовой цене. Вблизи жилого квартала появятся шумопоглощающие экраны, позволяющие забыть о том, что неподалёку находятся железнодорожные пути. На первых этажах домов откроются магазины, кафе, салоны красоты и другие полезные сервисы. Рядом есть школы и детские сады, магазины и ТРЦ ''Красный кит''. На территории проекта появится благоустроенная набережная реки Яузы и пешеходный бульвар для прогулок всей семьёй. Водонапорную башню XIX века, расположенную на территории ''Яуза парка'', мы реставрируем и создадим вокруг неё общественное пространство для отдыха жителей квартала. Для прогулок отлично подойдёт Мытищинский центральный парк культуры и отдыха, расположенный в 10 минутах ходьбы, и Лосиный остров — в 24 минутах. Дорога на автомобиле до Ярославского шоссе займёт не более 3 минут, до МКАД — 10 минут. Артикул 940823 (Застройщик ООО ''Специализированный ''НМ-Консалт'')
1/13
14 015 330 ₽
2-к, Ярославское шоссе, 120б корп. 4
57 м² · Этаж 13 из 25
Новостройка, сдана
Продаётся 2-комн. квартира площадью 57,7 кв.м на 13 этаже 25 этажного дома (Корпус 1.4, Секция 1) проекта ПИК Ярославский квартал. Светлый просторный подъезд на уровне земли, функциональная планировка, большие окна, c отделкой. Проект ''Ярославский квартал'' возводится в Мытищах, в 6 км от МКАД. Жилой квартал, состоящий из 8 корпусов, строится рядом с Ярославским шоссе и имеет удобный заезд с крупной автомагистрали. На территории проекта появится школа, детский сад и пешеходный бульвар. Индивидуальные дизайны фасадов для ''Ярославского квартала'' разработало петербургское архитектурное бюро. В их портфолио вошли работы для Московского музея современного искусства, ГЦСИ, Манифеста 10 и ЦВЗ Манеж. За 7 минут можно дойти пешком до ближайшей автобусной остановки. Столько же займёт дорога до ''Лосиного острова'' - облагороженного парка с разными активностями для всей семьи, благоустроенными зонами для отдыха, местами для прогулок и пробежек на свежем воздухе. Доехать на автомобиле до Ярославского шоссе получится за 3 минуты, до станции ''Мытищи'' - за 9 минут, до МКАД - за 15 минут. Артикул 911503 (Застройщик ООО ''Специализированный ''ГЕОПАРК'')
1/14
17 041 350 ₽
2-к, Яуза Парк ЖК, 5
51 м² · Этаж 14 из 24
Новостройка, 2 кв. 2026
Продаётся 2-комн. квартира площадью 51,5 кв.м на 14 этаже 24 этажного дома (Корпус 5, Секция 1) проекта ПИК Яуза парк. Светлый просторный подъезд на уровне земли, функциональная планировка, большие окна, c отделкой. Жилой квартал ''Яуза парк'' возводится в Мытищах, в 5 минутах ходьбы от одноимённой ж/д станции. Проект включает 20 домов разной этажности с благоустроенными дворами-парками. Сейчас в квартале началось строительство новых корпусов 7-12. Это отличная возможность купить квартиру по стартовой цене. Вблизи жилого квартала появятся шумопоглощающие экраны, позволяющие забыть о том, что неподалёку находятся железнодорожные пути. На первых этажах домов откроются магазины, кафе, салоны красоты и другие полезные сервисы. Рядом есть школы и детские сады, магазины и ТРЦ ''Красный кит''. На территории проекта появится благоустроенная набережная реки Яузы и пешеходный бульвар для прогулок всей семьёй. Водонапорную башню XIX века, расположенную на территории ''Яуза парка'', мы реставрируем и создадим вокруг неё общественное пространство для отдыха жителей квартала. Для прогулок отлично подойдёт Мытищинский центральный парк культуры и отдыха, расположенный в 10 минутах ходьбы, и Лосиный остров — в 24 минутах. Дорога на автомобиле до Ярославского шоссе займёт не более 3 минут, до МКАД — 10 минут. Артикул 940473 (Застройщик ООО ''Специализированный ''НМ-Консалт'')
1/14
15 432 200 ₽
2-к, Яуза Парк ЖК, 7
51 м² · Этаж 20 из 24
Новостройка, 4 кв. 2027
Продаётся 2-комн. квартира площадью 51,1 кв.м на 20 этаже 24 этажного дома (Корпус 7, Секция 1) проекта ПИК Яуза парк. Светлый просторный подъезд на уровне земли, функциональная планировка, большие окна, c отделкой. Жилой квартал ''Яуза парк'' возводится в Мытищах, в 5 минутах ходьбы от одноимённой ж/д станции. Проект включает 20 домов разной этажности с благоустроенными дворами-парками. Сейчас в квартале началось строительство новых корпусов 7-12. Это отличная возможность купить квартиру по стартовой цене. Вблизи жилого квартала появятся шумопоглощающие экраны, позволяющие забыть о том, что неподалёку находятся железнодорожные пути. На первых этажах домов откроются магазины, кафе, салоны красоты и другие полезные сервисы. Рядом есть школы и детские сады, магазины и ТРЦ ''Красный кит''. На территории проекта появится благоустроенная набережная реки Яузы и пешеходный бульвар для прогулок всей семьёй. Водонапорную башню XIX века, расположенную на территории ''Яуза парка'', мы реставрируем и создадим вокруг неё общественное пространство для отдыха жителей квартала. Для прогулок отлично подойдёт Мытищинский центральный парк культуры и отдыха, расположенный в 10 минутах ходьбы, и Лосиный остров — в 24 минутах. Дорога на автомобиле до Ярославского шоссе займёт не более 3 минут, до МКАД — 10 минут. Артикул 996136 (Застройщик ООО ''Специализированный ''НМ-Консалт'')
1/13
10 478 000 ₽
1-к, Яуза Парк ЖК, 12
32 м² · Этаж 9 из 15
Новостройка, 2 кв. 2028
Продаётся 1-комн. квартира площадью 32,5 кв.м на 9 этаже 15 этажного дома (Корпус 13, Секция 2) проекта ПИК Яуза парк. Светлый просторный подъезд на уровне земли, функциональная планировка, большие окна, c отделкой. Жилой квартал ''Яуза парк'' возводится в Мытищах, в 5 минутах ходьбы от одноимённой ж/д станции. Проект включает 20 домов разной этажности с благоустроенными дворами-парками. Сейчас в квартале началось строительство новых корпусов 7-12. Это отличная возможность купить квартиру по стартовой цене. Вблизи жилого квартала появятся шумопоглощающие экраны, позволяющие забыть о том, что неподалёку находятся железнодорожные пути. На первых этажах домов откроются магазины, кафе, салоны красоты и другие полезные сервисы. Рядом есть школы и детские сады, магазины и ТРЦ ''Красный кит''. На территории проекта появится благоустроенная набережная реки Яузы и пешеходный бульвар для прогулок всей семьёй. Водонапорную башню XIX века, расположенную на территории ''Яуза парка'', мы реставрируем и создадим вокруг неё общественное пространство для отдыха жителей квартала. Для прогулок отлично подойдёт Мытищинский центральный парк культуры и отдыха, расположенный в 10 минутах ходьбы, и Лосиный остров — в 24 минутах. Дорога на автомобиле до Ярославского шоссе займёт не более 3 минут, до МКАД — 10 минут. Артикул 1057644 (Застройщик ООО ''Специализированный ''НМ-Консалт'')
1/13
9 331 200 ₽
1-к, Ярославский ЖК, 2.2
38 м² · Этаж 2 из 25
Новостройка, 4 кв. 2027
Продаётся 1-комн. квартира площадью 38,4 кв.м на 2 этаже 25 этажного дома (Корпус 2.2, Секция 1) проекта ПИК Ярославский квартал. Светлый просторный подъезд на уровне земли, функциональная планировка, большие окна, c отделкой. Проект ''Ярославский квартал'' возводится в Мытищах, в 6 км от МКАД. Жилой квартал, состоящий из 8 корпусов, строится рядом с Ярославским шоссе и имеет удобный заезд с крупной автомагистрали. На территории проекта появится школа, детский сад и пешеходный бульвар. Индивидуальные дизайны фасадов для ''Ярославского квартала'' разработало петербургское архитектурное бюро. В их портфолио вошли работы для Московского музея современного искусства, ГЦСИ, Манифеста 10 и ЦВЗ Манеж. За 7 минут можно дойти пешком до ближайшей автобусной остановки. Столько же займёт дорога до ''Лосиного острова'' - облагороженного парка с разными активностями для всей семьи, благоустроенными зонами для отдыха, местами для прогулок и пробежек на свежем воздухе. Доехать на автомобиле до Ярославского шоссе получится за 3 минуты, до станции ''Мытищи'' - за 9 минут, до МКАД - за 15 минут. Артикул 1013024 (Застройщик ООО ''Специализированный ''ГЕОПАРК'')
1/14
13 174 040 ₽
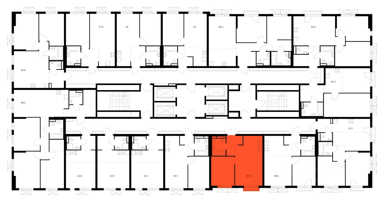
1-к, Яуза Парк ЖК, 7
37 м² · Этаж 13 из 24
Новостройка, 4 кв. 2027
Продаётся 1-комн. квартира площадью 37,9 кв.м на 13 этаже 24 этажного дома (Корпус 7, Секция 1) проекта ПИК Яуза парк. Светлый просторный подъезд на уровне земли, функциональная планировка, большие окна, c отделкой. Жилой квартал ''Яуза парк'' возводится в Мытищах, в 5 минутах ходьбы от одноимённой ж/д станции. Проект включает 20 домов разной этажности с благоустроенными дворами-парками. Сейчас в квартале началось строительство новых корпусов 7-12. Это отличная возможность купить квартиру по стартовой цене. Вблизи жилого квартала появятся шумопоглощающие экраны, позволяющие забыть о том, что неподалёку находятся железнодорожные пути. На первых этажах домов откроются магазины, кафе, салоны красоты и другие полезные сервисы. Рядом есть школы и детские сады, магазины и ТРЦ ''Красный кит''. На территории проекта появится благоустроенная набережная реки Яузы и пешеходный бульвар для прогулок всей семьёй. Водонапорную башню XIX века, расположенную на территории ''Яуза парка'', мы реставрируем и создадим вокруг неё общественное пространство для отдыха жителей квартала. Для прогулок отлично подойдёт Мытищинский центральный парк культуры и отдыха, расположенный в 10 минутах ходьбы, и Лосиный остров — в 24 минутах. Дорога на автомобиле до Ярославского шоссе займёт не более 3 минут, до МКАД — 10 минут. Артикул 996034 (Застройщик ООО ''Специализированный ''НМ-Консалт'')
1/14
17 703 070 ₽
2-к, Яуза Парк ЖК, 5
58 м² · Этаж 23 из 24
Новостройка, 2 кв. 2026
Продаётся 2-комн. квартира площадью 58,1 кв.м на 23 этаже 24 этажного дома (Корпус 5, Секция 1) проекта ПИК Яуза парк. Светлый просторный подъезд на уровне земли, функциональная планировка, большие окна, c отделкой. Жилой квартал ''Яуза парк'' возводится в Мытищах, в 5 минутах ходьбы от одноимённой ж/д станции. Проект включает 20 домов разной этажности с благоустроенными дворами-парками. Сейчас в квартале началось строительство новых корпусов 7-12. Это отличная возможность купить квартиру по стартовой цене. Вблизи жилого квартала появятся шумопоглощающие экраны, позволяющие забыть о том, что неподалёку находятся железнодорожные пути. На первых этажах домов откроются магазины, кафе, салоны красоты и другие полезные сервисы. Рядом есть школы и детские сады, магазины и ТРЦ ''Красный кит''. На территории проекта появится благоустроенная набережная реки Яузы и пешеходный бульвар для прогулок всей семьёй. Водонапорную башню XIX века, расположенную на территории ''Яуза парка'', мы реставрируем и создадим вокруг неё общественное пространство для отдыха жителей квартала. Для прогулок отлично подойдёт Мытищинский центральный парк культуры и отдыха, расположенный в 10 минутах ходьбы, и Лосиный остров — в 24 минутах. Дорога на автомобиле до Ярославского шоссе займёт не более 3 минут, до МКАД — 10 минут. Артикул 940624 (Застройщик ООО ''Специализированный ''НМ-Консалт'')
1/14
12 358 290 ₽
1-к, Яуза Парк ЖК, 9
34 м² · Этаж 2 из 25
Новостройка, 4 кв. 2027
Продаётся 1-комн. квартира площадью 34,3 кв.м на 2 этаже 25 этажного дома (Корпус 9, Секция 1) проекта ПИК Яуза парк. Светлый просторный подъезд на уровне земли, функциональная планировка, большие окна, c отделкой. Жилой квартал ''Яуза парк'' возводится в Мытищах, в 5 минутах ходьбы от одноимённой ж/д станции. Проект включает 20 домов разной этажности с благоустроенными дворами-парками. Сейчас в квартале началось строительство новых корпусов 7-12. Это отличная возможность купить квартиру по стартовой цене. Вблизи жилого квартала появятся шумопоглощающие экраны, позволяющие забыть о том, что неподалёку находятся железнодорожные пути. На первых этажах домов откроются магазины, кафе, салоны красоты и другие полезные сервисы. Рядом есть школы и детские сады, магазины и ТРЦ ''Красный кит''. На территории проекта появится благоустроенная набережная реки Яузы и пешеходный бульвар для прогулок всей семьёй. Водонапорную башню XIX века, расположенную на территории ''Яуза парка'', мы реставрируем и создадим вокруг неё общественное пространство для отдыха жителей квартала. Для прогулок отлично подойдёт Мытищинский центральный парк культуры и отдыха, расположенный в 10 минутах ходьбы, и Лосиный остров — в 24 минутах. Дорога на автомобиле до Ярославского шоссе займёт не более 3 минут, до МКАД — 10 минут. Артикул 998109 (Застройщик ООО ''Специализированный ''НМ-Консалт'')
1/13
12 474 600 ₽
1-к, Яуза Парк ЖК, 7
34 м² · Этаж 13 из 24
Новостройка, 4 кв. 2027
Продаётся 1-комн. квартира площадью 34 кв.м на 13 этаже 24 этажного дома (Корпус 7, Секция 1) проекта ПИК Яуза парк. Светлый просторный подъезд на уровне земли, функциональная планировка, большие окна, c отделкой. Жилой квартал ''Яуза парк'' возводится в Мытищах, в 5 минутах ходьбы от одноимённой ж/д станции. Проект включает 20 домов разной этажности с благоустроенными дворами-парками. Сейчас в квартале началось строительство новых корпусов 7-12. Это отличная возможность купить квартиру по стартовой цене. Вблизи жилого квартала появятся шумопоглощающие экраны, позволяющие забыть о том, что неподалёку находятся железнодорожные пути. На первых этажах домов откроются магазины, кафе, салоны красоты и другие полезные сервисы. Рядом есть школы и детские сады, магазины и ТРЦ ''Красный кит''. На территории проекта появится благоустроенная набережная реки Яузы и пешеходный бульвар для прогулок всей семьёй. Водонапорную башню XIX века, расположенную на территории ''Яуза парка'', мы реставрируем и создадим вокруг неё общественное пространство для отдыха жителей квартала. Для прогулок отлично подойдёт Мытищинский центральный парк культуры и отдыха, расположенный в 10 минутах ходьбы, и Лосиный остров — в 24 минутах. Дорога на автомобиле до Ярославского шоссе займёт не более 3 минут, до МКАД — 10 минут. Артикул 996044 (Застройщик ООО ''Специализированный ''НМ-Консалт'')
1/13
14 632 800 ₽
1-к, Яуза Парк ЖК, 5
36 м² · Этаж 15 из 24
Новостройка, 2 кв. 2026
Продаётся 1-комн. квартира площадью 36,4 кв.м на 15 этаже 24 этажного дома (Корпус 5, Секция 1) проекта ПИК Яуза парк. Светлый просторный подъезд на уровне земли, функциональная планировка, большие окна, c отделкой. Жилой квартал ''Яуза парк'' возводится в Мытищах, в 5 минутах ходьбы от одноимённой ж/д станции. Проект включает 20 домов разной этажности с благоустроенными дворами-парками. Сейчас в квартале началось строительство новых корпусов 7-12. Это отличная возможность купить квартиру по стартовой цене. Вблизи жилого квартала появятся шумопоглощающие экраны, позволяющие забыть о том, что неподалёку находятся железнодорожные пути. На первых этажах домов откроются магазины, кафе, салоны красоты и другие полезные сервисы. Рядом есть школы и детские сады, магазины и ТРЦ ''Красный кит''. На территории проекта появится благоустроенная набережная реки Яузы и пешеходный бульвар для прогулок всей семьёй. Водонапорную башню XIX века, расположенную на территории ''Яуза парка'', мы реставрируем и создадим вокруг неё общественное пространство для отдыха жителей квартала. Для прогулок отлично подойдёт Мытищинский центральный парк культуры и отдыха, расположенный в 10 минутах ходьбы, и Лосиный остров — в 24 минутах. Дорога на автомобиле до Ярославского шоссе займёт не более 3 минут, до МКАД — 10 минут. Артикул 940485 (Застройщик ООО ''Специализированный ''НМ-Консалт'')
1/13
9 990 330 ₽
1-к, Мытищи
33 м² · Этаж 21 из 24
Новостройка, 2 кв. 2028
Продаётся 1-комн. квартира площадью 33,9 кв.м на 21 этаже 24 этажного дома (Корпус 14, Секция 1) проекта ПИК Яуза парк. Светлый просторный подъезд на уровне земли, функциональная планировка, большие окна, c отделкой. Жилой квартал ''Яуза парк'' возводится в Мытищах, в 5 минутах ходьбы от одноимённой ж/д станции. Проект включает 20 домов разной этажности с благоустроенными дворами-парками. Сейчас в квартале началось строительство новых корпусов 7-12. Это отличная возможность купить квартиру по стартовой цене. Вблизи жилого квартала появятся шумопоглощающие экраны, позволяющие забыть о том, что неподалёку находятся железнодорожные пути. На первых этажах домов откроются магазины, кафе, салоны красоты и другие полезные сервисы. Рядом есть школы и детские сады, магазины и ТРЦ ''Красный кит''. На территории проекта появится благоустроенная набережная реки Яузы и пешеходный бульвар для прогулок всей семьёй. Водонапорную башню XIX века, расположенную на территории ''Яуза парка'', мы реставрируем и создадим вокруг неё общественное пространство для отдыха жителей квартала. Для прогулок отлично подойдёт Мытищинский центральный парк культуры и отдыха, расположенный в 10 минутах ходьбы, и Лосиный остров — в 24 минутах. Дорога на автомобиле до Ярославского шоссе займёт не более 3 минут, до МКАД — 10 минут. Артикул 1056820 (Застройщик ООО ''Специализированный ''НМ-Консалт'')
1/12
8 901 880 ₽
1-к, Ярославский ЖК, 2.2
32 м² · Этаж 20 из 25
Новостройка, 4 кв. 2027
Продаётся 1-комн. квартира площадью 32,3 кв.м на 20 этаже 25 этажного дома (Корпус 2.2, Секция 1) проекта ПИК Ярославский квартал. Светлый просторный подъезд на уровне земли, функциональная планировка, большие окна, c отделкой. Проект ''Ярославский квартал'' возводится в Мытищах, в 6 км от МКАД. Жилой квартал, состоящий из 8 корпусов, строится рядом с Ярославским шоссе и имеет удобный заезд с крупной автомагистрали. На территории проекта появится школа, детский сад и пешеходный бульвар. Индивидуальные дизайны фасадов для ''Ярославского квартала'' разработало петербургское архитектурное бюро. В их портфолио вошли работы для Московского музея современного искусства, ГЦСИ, Манифеста 10 и ЦВЗ Манеж. За 7 минут можно дойти пешком до ближайшей автобусной остановки. Столько же займёт дорога до ''Лосиного острова'' - облагороженного парка с разными активностями для всей семьи, благоустроенными зонами для отдыха, местами для прогулок и пробежек на свежем воздухе. Доехать на автомобиле до Ярославского шоссе получится за 3 минуты, до станции ''Мытищи'' - за 9 минут, до МКАД - за 15 минут. Артикул 1013271 (Застройщик ООО ''Специализированный ''ГЕОПАРК'')
1/12
15 401 050 ₽
2-к, Мытищи
55 м² · Этаж 24 из 24
Новостройка, 2 кв. 2028
Продаётся 2-комн. квартира площадью 55,3 кв.м на 24 этаже 24 этажного дома (Корпус 14, Секция 1) проекта ПИК Яуза парк. Светлый просторный подъезд на уровне земли, функциональная планировка, большие окна, c отделкой. Жилой квартал ''Яуза парк'' возводится в Мытищах, в 5 минутах ходьбы от одноимённой ж/д станции. Проект включает 20 домов разной этажности с благоустроенными дворами-парками. Сейчас в квартале началось строительство новых корпусов 7-12. Это отличная возможность купить квартиру по стартовой цене. Вблизи жилого квартала появятся шумопоглощающие экраны, позволяющие забыть о том, что неподалёку находятся железнодорожные пути. На первых этажах домов откроются магазины, кафе, салоны красоты и другие полезные сервисы. Рядом есть школы и детские сады, магазины и ТРЦ ''Красный кит''. На территории проекта появится благоустроенная набережная реки Яузы и пешеходный бульвар для прогулок всей семьёй. Водонапорную башню XIX века, расположенную на территории ''Яуза парка'', мы реставрируем и создадим вокруг неё общественное пространство для отдыха жителей квартала. Для прогулок отлично подойдёт Мытищинский центральный парк культуры и отдыха, расположенный в 10 минутах ходьбы, и Лосиный остров — в 24 минутах. Дорога на автомобиле до Ярославского шоссе займёт не более 3 минут, до МКАД — 10 минут. Артикул 1056867 (Застройщик ООО ''Специализированный ''НМ-Консалт'')
1/12
10 235 870 ₽
1-к, Яуза Парк ЖК, 12
32 м² · Этаж 7 из 15
Новостройка, 2 кв. 2028
Продаётся 1-комн. квартира площадью 32,3 кв.м на 7 этаже 15 этажного дома (Корпус 13, Секция 2) проекта ПИК Яуза парк. Светлый просторный подъезд на уровне земли, функциональная планировка, большие окна, c отделкой. Жилой квартал ''Яуза парк'' возводится в Мытищах, в 5 минутах ходьбы от одноимённой ж/д станции. Проект включает 20 домов разной этажности с благоустроенными дворами-парками. Сейчас в квартале началось строительство новых корпусов 7-12. Это отличная возможность купить квартиру по стартовой цене. Вблизи жилого квартала появятся шумопоглощающие экраны, позволяющие забыть о том, что неподалёку находятся железнодорожные пути. На первых этажах домов откроются магазины, кафе, салоны красоты и другие полезные сервисы. Рядом есть школы и детские сады, магазины и ТРЦ ''Красный кит''. На территории проекта появится благоустроенная набережная реки Яузы и пешеходный бульвар для прогулок всей семьёй. Водонапорную башню XIX века, расположенную на территории ''Яуза парка'', мы реставрируем и создадим вокруг неё общественное пространство для отдыха жителей квартала. Для прогулок отлично подойдёт Мытищинский центральный парк культуры и отдыха, расположенный в 10 минутах ходьбы, и Лосиный остров — в 24 минутах. Дорога на автомобиле до Ярославского шоссе займёт не более 3 минут, до МКАД — 10 минут. Артикул 1057635 (Застройщик ООО ''Специализированный ''НМ-Консалт'')
1/12
14 029 520 ₽
2-к, Ярославский ЖК, 2.2
62 м² · Этаж 14 из 25
Новостройка, 4 кв. 2027
Продаётся 2-комн. квартира площадью 62,8 кв.м на 14 этаже 25 этажного дома (Корпус 2.2, Секция 1) проекта ПИК Ярославский квартал. Светлый просторный подъезд на уровне земли, функциональная планировка, большие окна, c отделкой. Проект ''Ярославский квартал'' возводится в Мытищах, в 6 км от МКАД. Жилой квартал, состоящий из 8 корпусов, строится рядом с Ярославским шоссе и имеет удобный заезд с крупной автомагистрали. На территории проекта появится школа, детский сад и пешеходный бульвар. Индивидуальные дизайны фасадов для ''Ярославского квартала'' разработало петербургское архитектурное бюро. В их портфолио вошли работы для Московского музея современного искусства, ГЦСИ, Манифеста 10 и ЦВЗ Манеж. За 7 минут можно дойти пешком до ближайшей автобусной остановки. Столько же займёт дорога до ''Лосиного острова'' - облагороженного парка с разными активностями для всей семьи, благоустроенными зонами для отдыха, местами для прогулок и пробежек на свежем воздухе. Доехать на автомобиле до Ярославского шоссе получится за 3 минуты, до станции ''Мытищи'' - за 9 минут, до МКАД - за 15 минут. Артикул 1013183 (Застройщик ООО ''Специализированный ''ГЕОПАРК'')
1/12
8 025 600 ₽
1-к, Яуза Парк ЖК, 12
20 м² · Этаж 14 из 15
Новостройка, 2 кв. 2028
Продаётся квартира-студия площадью 20,9 кв.м на 14 этаже 15 этажного дома (Корпус 13, Секция 1) проекта ПИК Яуза парк. Светлый просторный подъезд на уровне земли, функциональная планировка, большие окна, c отделкой. Жилой квартал ''Яуза парк'' возводится в Мытищах, в 5 минутах ходьбы от одноимённой ж/д станции. Проект включает 20 домов разной этажности с благоустроенными дворами-парками. Сейчас в квартале началось строительство новых корпусов 7-12. Это отличная возможность купить квартиру по стартовой цене. Вблизи жилого квартала появятся шумопоглощающие экраны, позволяющие забыть о том, что неподалёку находятся железнодорожные пути. На первых этажах домов откроются магазины, кафе, салоны красоты и другие полезные сервисы. Рядом есть школы и детские сады, магазины и ТРЦ ''Красный кит''. На территории проекта появится благоустроенная набережная реки Яузы и пешеходный бульвар для прогулок всей семьёй. Водонапорную башню XIX века, расположенную на территории ''Яуза парка'', мы реставрируем и создадим вокруг неё общественное пространство для отдыха жителей квартала. Для прогулок отлично подойдёт Мытищинский центральный парк культуры и отдыха, расположенный в 10 минутах ходьбы, и Лосиный остров — в 24 минутах. Дорога на автомобиле до Ярославского шоссе займёт не более 3 минут, до МКАД — 10 минут. Артикул 1057584 (Застройщик ООО ''Специализированный ''НМ-Консалт'')
1/12
12 992 755 ₽
2-к, Ярославский ЖК, 2.2
62 м² · Этаж 4 из 25
Новостройка, 4 кв. 2027
Продаётся 2-комн. квартира площадью 62,6 кв.м на 4 этаже 25 этажного дома (Корпус 2.2, Секция 1) проекта ПИК Ярославский квартал. Светлый просторный подъезд на уровне земли, функциональная планировка, большие окна, c отделкой. Проект ''Ярославский квартал'' возводится в Мытищах, в 6 км от МКАД. Жилой квартал, состоящий из 8 корпусов, строится рядом с Ярославским шоссе и имеет удобный заезд с крупной автомагистрали. На территории проекта появится школа, детский сад и пешеходный бульвар. Индивидуальные дизайны фасадов для ''Ярославского квартала'' разработало петербургское архитектурное бюро. В их портфолио вошли работы для Московского музея современного искусства, ГЦСИ, Манифеста 10 и ЦВЗ Манеж. За 7 минут можно дойти пешком до ближайшей автобусной остановки. Столько же займёт дорога до ''Лосиного острова'' - облагороженного парка с разными активностями для всей семьи, благоустроенными зонами для отдыха, местами для прогулок и пробежек на свежем воздухе. Доехать на автомобиле до Ярославского шоссе получится за 3 минуты, до станции ''Мытищи'' - за 9 минут, до МКАД - за 15 минут. Артикул 1013049 (Застройщик ООО ''Специализированный ''ГЕОПАРК'')
1/12
10 384 450 ₽
1-к, Яуза Парк ЖК, 12
32 м² · Этаж 13 из 15
Новостройка, 2 кв. 2028
Продаётся 1-комн. квартира площадью 32,3 кв.м на 13 этаже 15 этажного дома (Корпус 13, Секция 2) проекта ПИК Яуза парк. Светлый просторный подъезд на уровне земли, функциональная планировка, большие окна, c отделкой. Жилой квартал ''Яуза парк'' возводится в Мытищах, в 5 минутах ходьбы от одноимённой ж/д станции. Проект включает 20 домов разной этажности с благоустроенными дворами-парками. Сейчас в квартале началось строительство новых корпусов 7-12. Это отличная возможность купить квартиру по стартовой цене. Вблизи жилого квартала появятся шумопоглощающие экраны, позволяющие забыть о том, что неподалёку находятся железнодорожные пути. На первых этажах домов откроются магазины, кафе, салоны красоты и другие полезные сервисы. Рядом есть школы и детские сады, магазины и ТРЦ ''Красный кит''. На территории проекта появится благоустроенная набережная реки Яузы и пешеходный бульвар для прогулок всей семьёй. Водонапорную башню XIX века, расположенную на территории ''Яуза парка'', мы реставрируем и создадим вокруг неё общественное пространство для отдыха жителей квартала. Для прогулок отлично подойдёт Мытищинский центральный парк культуры и отдыха, расположенный в 10 минутах ходьбы, и Лосиный остров — в 24 минутах. Дорога на автомобиле до Ярославского шоссе займёт не более 3 минут, до МКАД — 10 минут. Артикул 1057664 (Застройщик ООО ''Специализированный ''НМ-Консалт'')
1/14
10 173 930 ₽
1-к, Яуза Парк ЖК, 7
24 м² · Этаж 13 из 24
Новостройка, 4 кв. 2027
Продаётся квартира-студия площадью 24,7 кв.м на 13 этаже 24 этажного дома (Корпус 7, Секция 1) проекта ПИК Яуза парк. Светлый просторный подъезд на уровне земли, функциональная планировка, большие окна, c отделкой. Жилой квартал ''Яуза парк'' возводится в Мытищах, в 5 минутах ходьбы от одноимённой ж/д станции. Проект включает 20 домов разной этажности с благоустроенными дворами-парками. Сейчас в квартале началось строительство новых корпусов 7-12. Это отличная возможность купить квартиру по стартовой цене. Вблизи жилого квартала появятся шумопоглощающие экраны, позволяющие забыть о том, что неподалёку находятся железнодорожные пути. На первых этажах домов откроются магазины, кафе, салоны красоты и другие полезные сервисы. Рядом есть школы и детские сады, магазины и ТРЦ ''Красный кит''. На территории проекта появится благоустроенная набережная реки Яузы и пешеходный бульвар для прогулок всей семьёй. Водонапорную башню XIX века, расположенную на территории ''Яуза парка'', мы реставрируем и создадим вокруг неё общественное пространство для отдыха жителей квартала. Для прогулок отлично подойдёт Мытищинский центральный парк культуры и отдыха, расположенный в 10 минутах ходьбы, и Лосиный остров — в 24 минутах. Дорога на автомобиле до Ярославского шоссе займёт не более 3 минут, до МКАД — 10 минут. Артикул 996038 (Застройщик ООО ''Специализированный ''НМ-Консалт'')
1/14
11 931 850 ₽
1-к, Яуза Парк ЖК, 12
36 м² · Этаж 2 из 24
Новостройка, 4 кв. 2027
Продаётся 1-комн. квартира площадью 36,5 кв.м на 2 этаже 24 этажного дома (Корпус 12, Секция 1) проекта ПИК Яуза парк. Светлый просторный подъезд на уровне земли, функциональная планировка, большие окна, предчистовая отделка. Жилой квартал ''Яуза парк'' возводится в Мытищах, в 5 минутах ходьбы от одноимённой ж/д станции. Проект включает 20 домов разной этажности с благоустроенными дворами-парками. Сейчас в квартале началось строительство новых корпусов 7-12. Это отличная возможность купить квартиру по стартовой цене. Вблизи жилого квартала появятся шумопоглощающие экраны, позволяющие забыть о том, что неподалёку находятся железнодорожные пути. На первых этажах домов откроются магазины, кафе, салоны красоты и другие полезные сервисы. Рядом есть школы и детские сады, магазины и ТРЦ ''Красный кит''. На территории проекта появится благоустроенная набережная реки Яузы и пешеходный бульвар для прогулок всей семьёй. Водонапорную башню XIX века, расположенную на территории ''Яуза парка'', мы реставрируем и создадим вокруг неё общественное пространство для отдыха жителей квартала. Для прогулок отлично подойдёт Мытищинский центральный парк культуры и отдыха, расположенный в 10 минутах ходьбы, и Лосиный остров — в 24 минутах. Дорога на автомобиле до Ярославского шоссе займёт не более 3 минут, до МКАД — 10 минут. Артикул 1000611 (Застройщик ООО ''Специализированный ''НМ-Консалт'')
1/13
17 124 760 ₽
3-к, Ярославский ЖК, 2.2
84 м² · Этаж 3 из 25
Новостройка, 4 кв. 2027
Продаётся 3-комн. квартира площадью 84,4 кв.м на 3 этаже 25 этажного дома (Корпус 2.2, Секция 1) проекта ПИК Ярославский квартал. Светлый просторный подъезд на уровне земли, функциональная планировка, большие окна, c отделкой. Проект ''Ярославский квартал'' возводится в Мытищах, в 6 км от МКАД. Жилой квартал, состоящий из 8 корпусов, строится рядом с Ярославским шоссе и имеет удобный заезд с крупной автомагистрали. На территории проекта появится школа, детский сад и пешеходный бульвар. Индивидуальные дизайны фасадов для ''Ярославского квартала'' разработало петербургское архитектурное бюро. В их портфолио вошли работы для Московского музея современного искусства, ГЦСИ, Манифеста 10 и ЦВЗ Манеж. За 7 минут можно дойти пешком до ближайшей автобусной остановки. Столько же займёт дорога до ''Лосиного острова'' - облагороженного парка с разными активностями для всей семьи, благоустроенными зонами для отдыха, местами для прогулок и пробежек на свежем воздухе. Доехать на автомобиле до Ярославского шоссе получится за 3 минуты, до станции ''Мытищи'' - за 9 минут, до МКАД - за 15 минут. Артикул 1013041 (Застройщик ООО ''Специализированный ''ГЕОПАРК'')
1/14
17 207 960 ₽
2-к, Яуза Парк ЖК, 11
51 м² · Этаж 2 из 25
Новостройка, 4 кв. 2027
Продаётся 2-комн. квартира площадью 51,8 кв.м на 2 этаже 25 этажного дома (Корпус 11, Секция 1) проекта ПИК Яуза парк. Светлый просторный подъезд на уровне земли, функциональная планировка, большие окна, c отделкой. Жилой квартал ''Яуза парк'' возводится в Мытищах, в 5 минутах ходьбы от одноимённой ж/д станции. Проект включает 20 домов разной этажности с благоустроенными дворами-парками. Сейчас в квартале началось строительство новых корпусов 7-12. Это отличная возможность купить квартиру по стартовой цене. Вблизи жилого квартала появятся шумопоглощающие экраны, позволяющие забыть о том, что неподалёку находятся железнодорожные пути. На первых этажах домов откроются магазины, кафе, салоны красоты и другие полезные сервисы. Рядом есть школы и детские сады, магазины и ТРЦ ''Красный кит''. На территории проекта появится благоустроенная набережная реки Яузы и пешеходный бульвар для прогулок всей семьёй. Водонапорную башню XIX века, расположенную на территории ''Яуза парка'', мы реставрируем и создадим вокруг неё общественное пространство для отдыха жителей квартала. Для прогулок отлично подойдёт Мытищинский центральный парк культуры и отдыха, расположенный в 10 минутах ходьбы, и Лосиный остров — в 24 минутах. Дорога на автомобиле до Ярославского шоссе займёт не более 3 минут, до МКАД — 10 минут. Артикул 1000032 (Застройщик ООО ''Специализированный ''НМ-Консалт'')
1/14
15 457 190 ₽
1-к, Яуза Парк ЖК, 6
43 м² · Этаж 17 из 24
Новостройка, 2 кв. 2026
Продаётся 1-комн. квартира площадью 43,9 кв.м на 17 этаже 24 этажного дома (Корпус 6, Секция 1) проекта ПИК Яуза парк. Светлый просторный подъезд на уровне земли, функциональная планировка, большие окна, c отделкой. Жилой квартал ''Яуза парк'' возводится в Мытищах, в 5 минутах ходьбы от одноимённой ж/д станции. Проект включает 20 домов разной этажности с благоустроенными дворами-парками. Сейчас в квартале началось строительство новых корпусов 7-12. Это отличная возможность купить квартиру по стартовой цене. Вблизи жилого квартала появятся шумопоглощающие экраны, позволяющие забыть о том, что неподалёку находятся железнодорожные пути. На первых этажах домов откроются магазины, кафе, салоны красоты и другие полезные сервисы. Рядом есть школы и детские сады, магазины и ТРЦ ''Красный кит''. На территории проекта появится благоустроенная набережная реки Яузы и пешеходный бульвар для прогулок всей семьёй. Водонапорную башню XIX века, расположенную на территории ''Яуза парка'', мы реставрируем и создадим вокруг неё общественное пространство для отдыха жителей квартала. Для прогулок отлично подойдёт Мытищинский центральный парк культуры и отдыха, расположенный в 10 минутах ходьбы, и Лосиный остров — в 24 минутах. Дорога на автомобиле до Ярославского шоссе займёт не более 3 минут, до МКАД — 10 минут. Артикул 940890 (Застройщик ООО ''Специализированный ''НМ-Консалт'')
1/13
11 371 509 ₽
2-к, Ярославский ЖК, 2.2
51 м² · Этаж 10 из 25
Новостройка, 4 кв. 2027
Продаётся 2-комн. квартира площадью 51,5 кв.м на 10 этаже 25 этажного дома (Корпус 2.2, Секция 1) проекта ПИК Ярославский квартал. Светлый просторный подъезд на уровне земли, функциональная планировка, большие окна, c отделкой. Проект ''Ярославский квартал'' возводится в Мытищах, в 6 км от МКАД. Жилой квартал, состоящий из 8 корпусов, строится рядом с Ярославским шоссе и имеет удобный заезд с крупной автомагистрали. На территории проекта появится школа, детский сад и пешеходный бульвар. Индивидуальные дизайны фасадов для ''Ярославского квартала'' разработало петербургское архитектурное бюро. В их портфолио вошли работы для Московского музея современного искусства, ГЦСИ, Манифеста 10 и ЦВЗ Манеж. За 7 минут можно дойти пешком до ближайшей автобусной остановки. Столько же займёт дорога до ''Лосиного острова'' - облагороженного парка с разными активностями для всей семьи, благоустроенными зонами для отдыха, местами для прогулок и пробежек на свежем воздухе. Доехать на автомобиле до Ярославского шоссе получится за 3 минуты, до станции ''Мытищи'' - за 9 минут, до МКАД - за 15 минут. Артикул 1013137 (Застройщик ООО ''Специализированный ''ГЕОПАРК'')
  • 45
  • 46
  • 47
  • 48
  1. Недвижимость в Мытищах
  2. Продажа
  3. Квартиры
  4. 40917 объявлений

Может быть полезно

Ипотека

Узнайте за 10 минут, какой кредит вам одобрят банки

Подбор риелтора

Риелтор поможет купить или продать любую недвижимость

Журнал

10 идей для обустройства ванной 10 идей для обустройства ванной
Как правильно написать объявление о сдаче квартиры Как правильно написать объявление о сдаче квартиры
Арктический гектар: как бесплатно получить участок в 2026 году Арктический гектар: как бесплатно получить участок в 2026 году
Подключение воды к частному дому: как выбрать оптимальный вариант и какой порядок действий Подключение воды к частному дому: как выбрать оптимальный вариант и какой порядок действий
Фейковая аренда: как распознать мошенничество Фейковая аренда: как распознать мошенничество
Читать все статьи
По районам
  • 25
  • 14
  • 18
  • Ярославский
  • Леонидовка
  • 2, 3
  • Строитель
По субъектам области
  • Котельники
  • Химки городской округ
  • Электросталь
  • Лыткарино
  • Пушкинский городской округ
  • Солнечногорск городской округ
  • Белая Дача мкр
  • Пересвет
  • Балашиха
  • Лобня
  • Пушкино
  • Одинцово
  • Томилино пгт
  • Ногинск
  • Лосино-Петровский городской округ
  • Высоковск
  • Сергиев Посад
  • Видное городское поселение
  • с. Ям
  • Подольск
  • д. Калиновка
  • Красноармейск
  • Электросталь городской округ
  • Сергиево-Посадский район
  • Краснозаводск
  • Гагарина мкр
  • пос. Нагорное
  • Авиаторов мкр
  • Ивантеевка
  • Черноголовка
  • д. Коробово
  • Мисайлово пгт
  • Одинцовский городской округ
  • Жуковский городской округ
  • Ленинский городской округ
  • Наро-Фоминский городской округ
  • д. Подолино
  • Люберцы городской округ
  • Ковровый мкр
  • Хотьково
  • Красноармейск
  • Лобня городской округ
  • Домодедово городской округ
  • Королев городской округ
  • Мытищи городской округ
  • Богородский городской округ
  • Звенигород
  • Клин
  • Горки Ленинские городское поселение
  • Дмитров
  • Красногорск городской округ
  • Южный мкр
  • Западный мкр
  • д. Островцы
  • Балашихинский район
  • Лыткарино городской округ
  • Люберцы
  • Подольск городской округ
  • Яхрома
  • Долгопрудный городской округ

Некоторые материалы настоящего раздела могут содержать информацию, запрещенную для детей, не достигших шести лет.

Информация о возрастных ограничениях в отношении информационной продукции, подлежащая распространению на основании норм Федерального закона «О защите детей от информации, причиняющей вред их здоровью и развитию».

О компанииСправочный центрВакансии
© ООО «Н1.РУ»  Правила использования

Некоторые материалы настоящего раздела могут содержать информацию, запрещенную для детей, не достигших шести лет.

Информация о возрастных ограничениях в отношении информационной продукции, подлежащая распространению на основании норм Федерального закона «О защите детей от информации, причиняющей вред их здоровью и развитию».

Новостройки
Студии
Однокомнатные
Двухкомнатные
Трехкомнатные
Четырехкомнатные
Многокомнатные
Каталоги
Выделение цветом
Спецпредложение
Топ
Турбо
Вторичка
Однокомнатные
Комнаты
Студии
Коттеджи
Дома
Аренда недвижимости
Квартиры
Комнаты
Студии
Коттеджи
Дома
Города
Архангельск
Екатеринбург
Красноярск
Новосибирск
Омск
Пермь
Тюмень
Челябинск
Все города
Карта сайта
 Купите квартиру в Мытищах - 40 917 объявлений в каталоге жилой недвижимости на N1. Средняя цена продажи или покупки жилья составляет 9,8 млн ₽. Покупайте квартиры недорого на сайте N1.ru.