2-к, Мытищи Показать на карте
Мытищи
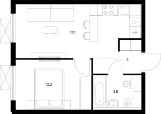
Строим кварталы для жизни с заботой о будущем. Предлагается 2-комнатная квартира комфорт-класса 54,43 кв.м в корпусе 6 на 10 этаже, в ЖК ''Мытищи Парк''Квартира с чистовой отделкой. Доступность дополнительных опций уточняйте у застройщика.Приобрести квартиру возможно по специальным акциям от застройщика, с текущими условиями акций можно ознакомиться в блоке ''Акций''.Цена динамическая и может отличаться, уточняйте актуальность у застройщика.ЖК ''Мытищи Парк'' — это надежные и долговечные монолитные корпуса. При проектировании домов и территории застройщик учел потребности жильцов всех возрастов — молодых пар, семей с детьми и пожилых людей.ЖК ''Мытищи Парк'' расположен в Московской области и с двух сторон окружен Пироговским лесопарком.
54 м2
10 / 17 этаж
Монолит
- Показать контакты
- Добавить в избранное
54 м2
10 / 17 этаж
Монолит
12 550 592
230 582 /м2
Новостройка,
III-2026
III-2026
