3-к, Мытищи Показать на карте
Мытищи
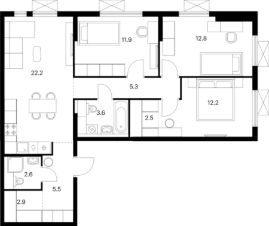
Строим кварталы для жизни с заботой о будущем. Предлагается 3-комнатная квартира комфорт-класса 61,67 кв.м в корпусе 3 на 3 этаже, в ЖК ''Долина Яузы''Квартира с чистовой отделкой. Доступность дополнительных опций уточняйте у застройщика.Приобрести квартиру возможно по специальным акциям от застройщика, с текущими условиями акций можно ознакомиться в блоке ''Акций''.Цена динамическая и может отличаться, уточняйте актуальность у застройщика.Жилой комплекс комфорт-класса ''Долина Яузы'' расположен на северо-востоке Московской области, в 200 м от МКАД. До ж/д станции Перловская или набережной реки Яуза можно дойти за 10 минут. В шаговой доступности находятся детские сады, школы, стоматология и поликлиника. Есть супермаркеты и кофейни, детские и спортивные площадки, зоны отдыха под навесом. У каждого дома будет собственный двор-сад, где посадят плодовые и вечнозеленые деревья и кустарники. Территория около жилого комплекса закрыта от машин и посторонних и круглосуточно охраняется. В жилом комплексе ''Долина Яузы'' большой выбор квартир: от однокомнатных до трехкомнатных. Квартиры сдаются с готовой отделкой или без нее.
61 м2
3 / 24 этаж
Монолит
- Показать контакты
- Добавить в избранное
61 м2
3 / 24 этаж
Монолит
18 574 311
301 189 /м2
Новостройка,
I-2026
I-2026
