2-к, Октябрьский проспект, 16 Показать на карте
Мытищи
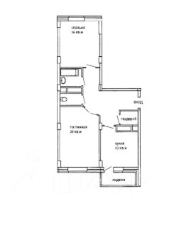
Видовая распашонка — редкий формат для этого ЖК.Средний этаж, окна на две стороны, зелёный открытый вид без плотной застройки напротив.Тихая, светлая квартира с хорошей глубиной перспективы в сторону природной зоны и национального парка Лосиный Остров.Окна на две стороны обеспечивают отличную инсоляцию, естественное проветривание и комфортный микроклимат.КЛЮЧЕВЫЕ ХАРАКТЕРИСТИКИ• Площадь с учётом лоджии — около 74 м²• Распашонка: окна на две противоположные стороны• Изолированные комнаты правильной формы• Просторная кухня• Отдельная гардеробная• Застеклённая лоджия, раздельный санузел• Приватная секция — малое количество квартир на этаже• Зелёный вид, отсутствие плотной застройки напротив• Без перепланировок — полностью подходит под ипотеку• Удобная бесплатная гостевая парковка на территории ЖКСОСТОЯНИЕКвартира ухоженная, можно заехать сразу.Отделка от застройщика с обновлённым косметическим ремонтом — нейтральная база, которую легко адаптировать под любой стиль.Все параметры соответствуют проектной документации.ДОМ И ЖКЖК Цветочный город — современный комплекс комфорт-класса.• Монолитно-кирпичный дом• Благоустроенные зелёные дворы, видеонаблюдение• Детские и спортивные площадки• Большая организованная бесплатная гостевая парковка на территории ЖК — без дефицита мест в обычное время• Дополнительные парковочные карманы по периметру• Чистые подъезды и ухоженные общие зоны• Благоустроенная набережная реки Яуза рядом с домомЛОКАЦИЯЗелёный, спокойный и семейный район.В пешей доступности школы, детские сады, супермаркеты, кафе, фитнес-клубы, аптеки и бытовые сервисы.Рядом природные территории и прогулочные маршруты вдоль Яузы и в сторону Лосиного Острова.ТРАНСПОРТ• Прямой выезд на МКАД — около 2 км, также удобный выезд через новую развязку• Одна станция — около 5 минут пешком, вторая также в шаговой доступности• Скоростные поезда Иволга 4.0• Около 11 минут до пересадки на МЦК• Примерно 25 минут до станций Кольцевой и Красной линий метро без зависимости от пробокЮРИДИЧЕСКАЯ ЧИСТОТА• Один взрослый собственник• Без обременений• Полная стоимость в договоре• Документы готовы к проверке• Быстрый и прозрачный выход на сделкуФОРМАТ СДЕЛКИПрямая продажа от собственника.Показы — по договорённости, возможен онлайн-просмотр.Обращаюсь к покупателям и их официальным представителям,услуги посредников не требуются.
74 м2
8 / 17 этаж
Кирпич - монолит
- Показать контакты
- Добавить в избранное
74 м2
8 / 17 этаж
Кирпич - монолит
15 690 000
212 027 /м2
