3-к, Летная, 16 корп. 3 Показать на карте
Мытищи
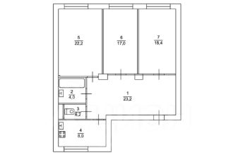
Код объекта: 1666373. Уникальное предложение на рынке недвижимости: продаётся трёхкомнатная квартира в живописном районе Мытищ! От дома до метро Медведково в 20 мин езды на транспорте, так же до станции Мытищ 15 мин. Выезд на Ярославское шоссе и Осташковское шоссе в 10 мин. Квартира расположена по адресу: Лётная улица, 16к3. Один взрослый собственник. Это уютный и зелёный район с развитой инфраструктурой. Дом построен в 1967 году из кирпича, что гарантирует его надёжность и долговечность. Квартира находится на втором этаже пятиэтажного дома, в ней выполнен дизайнерский ремонт, который создаёт атмосферу уюта и комфорта. Из мебели остаётся кухня.Общая площадь квартиры составляет 57,9 кв. м, из которых 44 кв. м — жилая площадь, 6 кв. м — кухня. В квартире две изолированные комнаты, окна выходят на улицу. Также есть балкон, где можно разместить зону отдыха.Расположение квартиры — угловое, что обеспечивает хорошее освещение и проветривание. Есть наземная парковка. Удачное местоположение и развитая городская инфраструктура: магазины в шаговой доступности, кафе, рестораны для хорошего время провождения, несколько школ и детские сады.Не упустите шанс стать владельцем этой замечательной квартиры! Позвоните нам прямо сейчас, чтобы узнать больше информации и записаться на просмотр.Мы гарантируем безопасную сделку и юридическую поддержку нашим Клиентам. Поможем одобрить ипотеку с сниженной ставкой.
57 м2
2 / 5 этаж
Кирпич
- Показать контакты
- Добавить в избранное
57 м2
2 / 5 этаж
Кирпич
10 800 000
186 528 /м2
