1-к, Стрелковый 1-й переулок, 3 Показать на карте
Мытищи
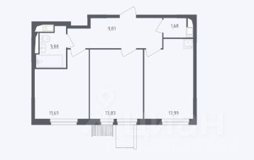
Номер в базе: 871379. У вас есть УНИКАЛЬНАЯ возможность стать обладателем данной просторной и светлой квартиры!ОБ ОБЪЕКТЕ: квартира с отделкой, не требует дополнительных вложений, можно сразу заехать и жить или успешно сдавать в аренду.ОБЩАЯ ПЛОЩАДЬ квартиры 35 м2. Евро двушка (изолированная комната и кухня с гостиной). Отличная планировка : Комфортная и просторная кухня. ИНФРАСТРУКТУРА: Несколько школ, детских садов, магазинов в пешей доступности , поликлиники, банки, спортивные и детские площадки. Все необходимое для комфортной жизни рядом.ТРАНСПОРТНАЯ ДОСТУПНОСТЬ: ОЧЕНЬ удобная! До автобусной остановки 5 минут пешком, есть недалеко станция электрички ''Строитель'', в скором будущем МЦД (наземное метро), из за чего после открытия цены вырастут существенно.ДОКУМЕНТЫ: 1 собственник, полная стоимость в ДКП.НЕТ ОДОБРЕННОЙ ИПОТЕКИ? Свяжитесь со мной, мы подберем для вас лучшую программу в одном из 30 банков-партнёров. Уже есть решение от банка? Мы снизим процентную ставку. ОДИН ЗВОНОК и вы получите безупречный сервис от компании Этажи!По остальным вопросам буду рад ответить по телефону.
35 м2
2 / 17 этаж
Монолит
- Показать контакты
- Добавить в избранное
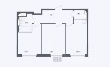
35 м2
2 / 17 этаж
Монолит
6 500 000
185 714 /м2
