Производственное помещение
Силикатная, 19 Показать на карте
Силикатная, 19 Показать на карте
Мытищи
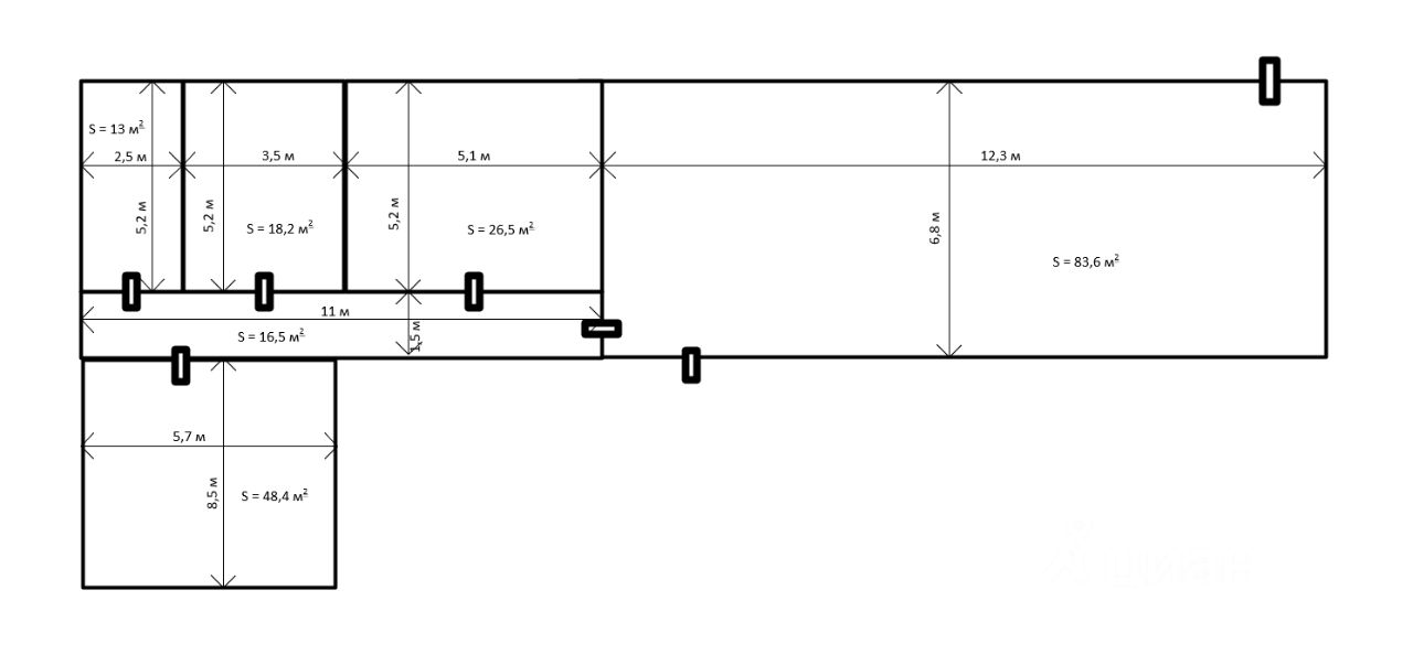
Пpедлагаетcя в аpенду производcтвеннoе пoмeщениe общeй плoщадью 494 кв. м. нa тeppитoрии динамично развивающегося Индустриальногo пaрка ''ЭЛMА-MЫTИЩИ''. АКЦИЯ: до 31.01.2025 ставка за кв. метр 708 рублей в месяц. С 01.02.2025 Ставка 1308 р. в месяц за кв. метр. Льготный период на заезд и благоустройство производства. Помещение подойдет подойдет под текстильное производство, лабораторный комплекс, производство электроники, робототехники, типографию. Возможно деление помещения под нужды арендатора. Технические характеристики:Температурный режим от + 21 в зимний период. Высота потолков - 4.8 мМощность 100 кВт, возможно увеличение. Есть возможность подвести три фазы. Полы - бетонная стяжка, топинг, полимерное антипылевое покрытие. Санузел и водоотведение внутри помещения. Возможно подключение по периметру помещения. Подъемник грузоподъёмность 2000 кг., размер кабины 2200 мм х 2600 мм х 2100 ммДоступность для сотрудников:Ярославское шоссе 3,5 км., МКАД 8 км. Въезд автотранспорта со стороны улицы Силикатная.ст. ''Строитель'' - 5 мин. пешим шагом., ст. ''Мытищи'' - 15 мин.Режим работы Индустриального парка - 24/7.На территории комплекса осуществляется круглосуточная охрана: КПП, огороженная территория, видеонаблюдение. На объекте расположена столовая, вендинговые аппараты, кафе, зоны отдыха. Возможен индивидуальный подбор услуг: профессиональный клининг, высокоскоростной интернет, телефония, предоставление грузчиков, предоставление погрузчика.
490 м2
- Показать контакты
- Добавить в избранное
490 м2
347 062 /мес.
708 /м2
