Если цена в объявлении изменится, мы сразу сообщим вам об этом на электронную почту.
Нажимая «Подписаться», вы соглашаетесь с правилами.
продам 4-к, Разведчика Абеля, 532 000 000 ₽
2 окт
Дата публикации объявления
Обн. 27 окт
Дата обновления объявления
19
Количество просмотров (+ просмотры за сегодня)
286 738 ₽/м²
Чистая продажа
Термин "Чистая продажа" означает, что в квартире никто не прописан или
есть куда выписаться и вывезти вещи. Это лучший вариант для покупателя.
Вероятность срыва сделки минимальна.
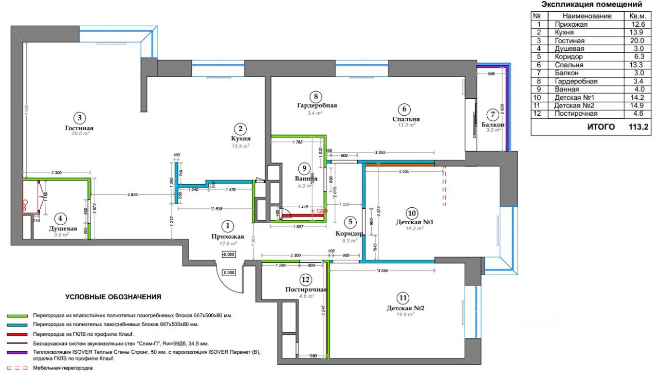
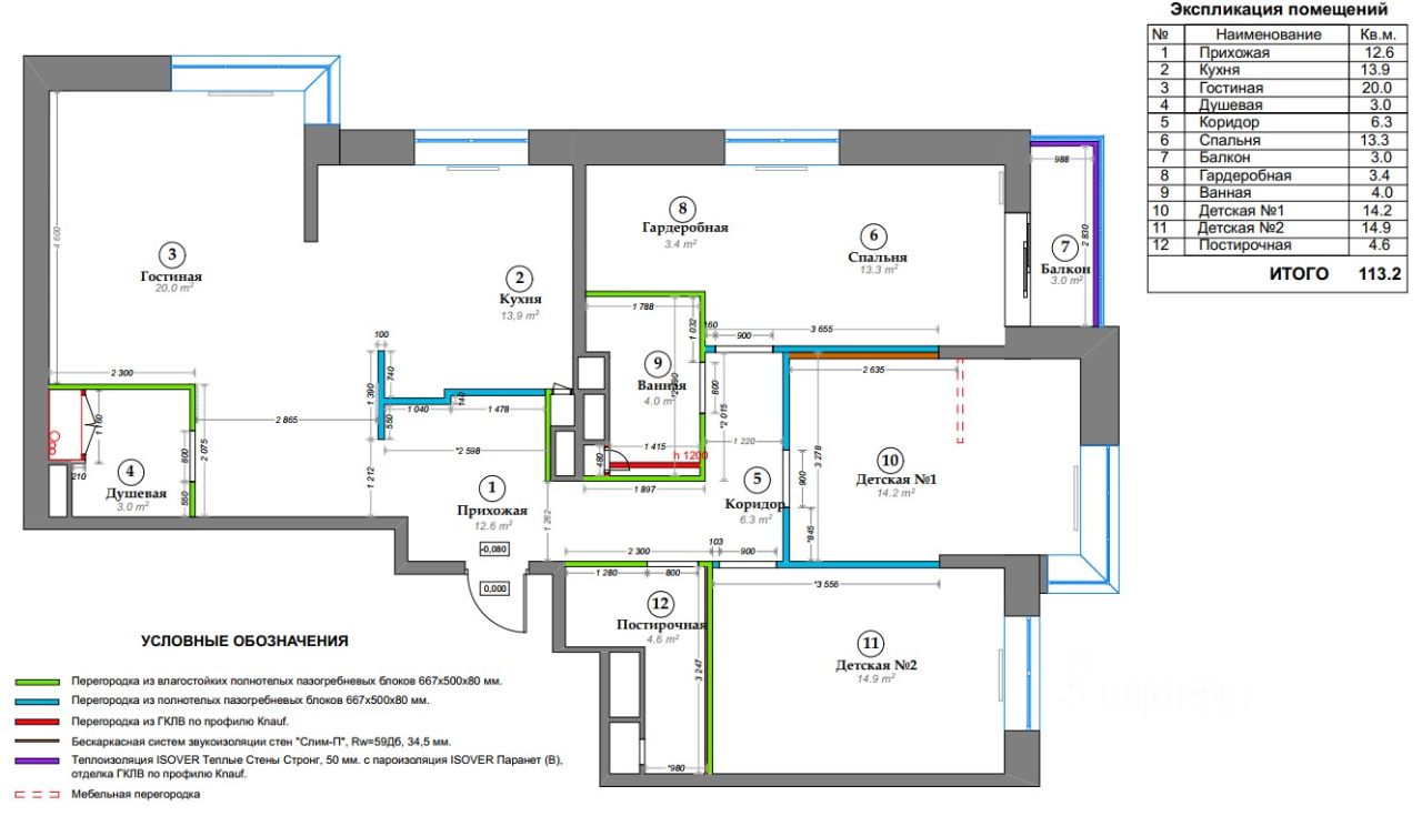
Со всей мебелью и техникой продаётся 4кмн квартира. Без обременений и перепланировок, 1 взрослый собственник (личное участие на всех этапах), выписка до сделки, альтернатива подобрана. Квартира в идеальном состоянии! Ремонт производился профессионалами высокой квалификации с участием дизайнера и тех.надзора. Трубы водоснабжения и отопления Rehau от коллекторной, аквастоп во всех мокрых точках, водонагреватели, кондиционеры в каждой комнате, тёплый пол с возможностью удалённого доступа, несколько сценариев освещения, количество розеток отвечающее требованиям современной квартиры. Идеальная планировка - кухня+гостиная, три изолированные спальни, 2 совмещённых с/у, прачечная, гардеробная, утеплённый балкон с рабочим пространством.
Со всей мебелью и техникой продаётся 4кмн квартира. Без обременений и перепланировок, 1 взрослый собственник (личное участие на всех этапах), выписка до сделки, альтернатива подобрана. Квартира в идеальном состоянии! Ремонт производился профессионалами высокой квалификации с участием дизайнера и тех.надзора. Трубы водоснабжения и отопления Rehau от коллекторной, аквастоп во всех мокрых точках, водонагреватели, кондиционеры в каждой комнате, тёплый пол с возможностью удалённого доступа, несколько сценариев освещения, количество розеток отвечающее требованиям современной квартиры. Идеальная планировка - кухня+гостиная, три изолированные спальни, 2 совмещённых с/у, прачечная, гардеробная, утеплённый балкон с рабочим пространством. Агентство Life Drive гарантирует своим клиентам безопасность сделки.