4-к, Разведчика Абеля, 5 Показать на карте
Мытищи
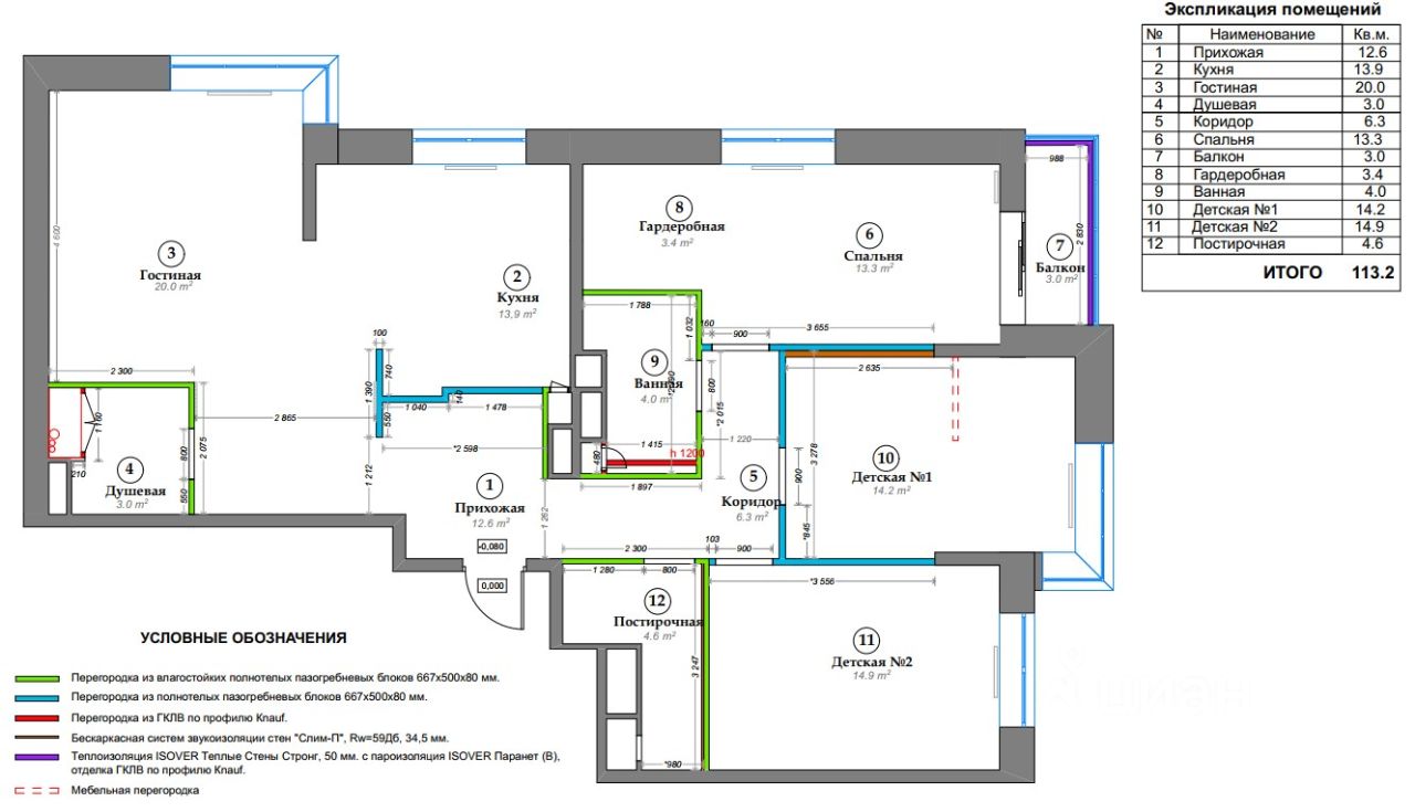
Со всей мебелью и техникой продаётся 4кмн квартира. Без обременений и перепланировок, 1 взрослый собственник (личное участие на всех этапах), выписка до сделки, альтернатива подобрана. Квартира в идеальном состоянии!Ремонт производился профессионалами высокой квалификации с участием дизайнера и тех.надзора.Трубы водоснабжения и отопления Rehau от коллекторной, аквастоп во всех мокрых точках, водонагреватели, кондиционеры в каждой комнате, тёплый пол с возможностью удалённого доступа, несколько сценариев освещения, количество розеток отвечающее требованиям современной квартиры.Идеальная планировка - кухня+гостиная, три изолированные спальни, 2 совмещённых с/у, прачечная, гардеробная, утеплённый балкон с рабочим пространством.Агентство Life Drive гарантирует своим клиентам безопасность сделки.
111 м2
14 / 18 этаж
Монолит
- Показать контакты
- Добавить в избранное
111 м2
14 / 18 этаж
Монолит
32 000 000
286 738 /м2
